ClickCase.it

Zona Ognina-Picanello, appartamento al piano terra

Appartamento in Vendita da Privato - Zona Picanello, Catania

80 m² | 3 locali | 2 bagni | € 170.000 | Segnala abuso

Descrizione

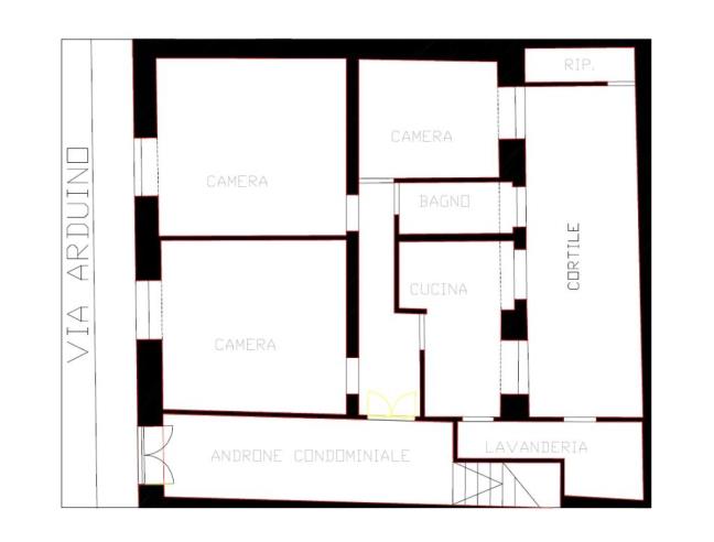
No intermediari. Zona Ognina-Picanello, appartamento al piano terra con cortile annesso ad uso esclusivo di mq. 25, composto da n. 3 camere, cucina abitabile, bagno e lavanderia, con una superficie coperta di mq. 80 ca. Il prezzo richiesto comprende la ristrutturazione dell’immobile come da pianta di progetto, comprendente il rifacimento del bagno, della cucina e della lavanderia (con la creazione di un secondo servizio), demolizioni e nuova disposizione interna, nuova pavimentazione interna e nel cortile, controsoffitti, tinteggiature, serramenti esterni e porte interne, impianto di riscaldamento autonomo con caldaia e radiatori nei vari ambienti, impianto elettrico, telefonico e televisivo. La ristrutturazione sarà realizzata in 120 gg. dalla stipula del contratto.
Classe energetica C

Video

Caratteristiche

Stato: Ristrutturato
Anno costruzione: 1951
Piano: Piano terra
Totale piani: 4
Cucina: Abitabile
Bagni: 2
Giardino: Nessuno
Camere da letto: 2
Riscaldamento: Autonomo
Climatizzazione: Predisposizione
Arredamento: Vuoto
Ascensore: No
Balcone/Terrazzo: Terrazzo
Box/Posto Auto: No
Cantina: No
Classe energetica: Classe Energetica C

Contatti

Inserzionista vincenzo presenti
Aggiornato il 16 agosto 2025

Invia un messaggio all'inserzionista

Casa Da Privato
La tua pubblicità qui, contattaci subito!

© 2005-2025 LaboWeb S.n.c. - P. Iva 10185480968
L'utilizzo del sito è subordinato all'accettazione delle Condizioni Generali, Informativa Privacy e Cookie Privacy - Impostazioni Privacy