122 m² | più di 5 locali | 2 bagni | Trattativa Riservata | Segnala abuso
 
	                        Descrizione
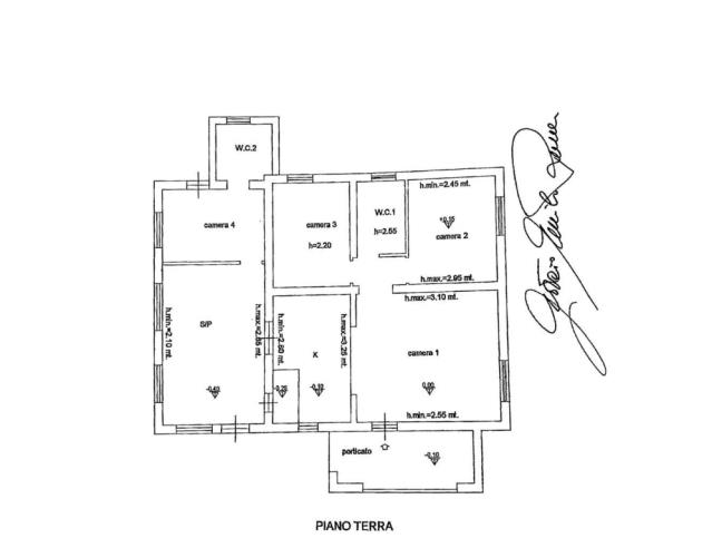
Privato vende. Vendo villino indipendente mq 122 con annesso terreno 4500 mq circa.
Patio ingresso, salone, cucina in muratura, due camere da letto due bagni ampio rustico con camino e braciere.
Tutta la copertura è realizzata in legno di castagno con pannelli termoisolanti.
Riscaldamento autonomo con termostufa e caldaia gpl 
Pozzo artesiano, possibilità allaccio acqua comunale, fossa biologica con possibilità di allaccio a fogne comunali. 
In regola con tutti i permessi edilizi, possibilità  di accedere ai contributi/agevolazioni per interventi di ampliamento e/o modifica.
T R A T T A B I L E
Classe energetica G
Caratteristiche

Contatti
Inserzionista Stefania
Aggiornato il 20 settembre 2025
No contatti pubblicitari, grazie.
 
	                         
	                         
	                         
	                         
	                         
	                        