130 m² | più di 5 locali | Trattativa Riservata | Segnala abuso
 
	                        Descrizione
No intermediari. Ti piace veder nascere la tua nuova abitazione e avere la possibilità di venire ad abitare in una casa costruita secondo i tuoi gusti e le tue esigenze?
Allora non esitare a prenotare una visita in cantiere.
A Borgaro Torinese, a 300 metri dal centro paese, comoda a tutti i servizi, ai negozi, ed ottimamente collegata alle tangenziali ed ai mezzi pubblici ma al tempo stesso lontano in posizione appartata, proponiamo una raffinata e pregevole casa indipendente al piano terra nel complesso di villetta bifamiliare; dotata di un curato giardino e di un godibile portico.
Di recente costruzione, si caratterizza per l’elegante architettura.
All’avanguardia in materia di risparmio energetico ed a basso impatto ambientale, offre una rara opportunità per chi ricerca un'appartamento indipendente, dalle generose dimensioni e con equilibrato utilizzo degli spazi.
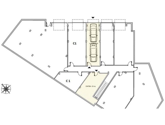
La villa internamente è così suddivisa: al piano interrato uno spazioso garage che può agevolmente ospitare fino a due auto(33 MQ), ampio locale cantina che sposa tutte le eventuali esigenze(42 MQ).
Al piano primo ci accoglie l’entrata diretta su ampio soggiorno living open space con zona relax e zona pranzo, grande cucina abitabile, una ampia camere e un bagno; ampia esposizione di luce su tutto l'appartamento.
Inoltre salendo le scale si arriva al piano mansardato abitabile così composto: due camere e un bagno, con un ampio balcone coperto con bellissima vista sui campi.
L'immobile viene VENDUTO DIRETTAMENTE TRAMITE L'IMPRESA ESECUTRICE.
Proprio per questo motivo c'è la possibilità di scegliere i materiali che preferisci e progettare gli impianti secondo tuo piacimento(caldaia a condensazione e pannelli solari per acqua calda sanitaria).
SCEGLI, CREA e IMMAGINA insieme a noi il tuo HABITAT, noi REALIZZIAMO IL TUO SOGNO e lo facciamo diventare REALTA'.
Se accarezzate l'idea di andare a vivere lontano dal caos cittadino, senza rinunciare alle comodità, dovete venire a visitare questa soluzione indipendente ma non isolata sita nel comune di Borgaro(al confine con il comune di Torino).
Tempi di consegna previsti chiavi in mano al futuro acquirente: circa 150/180 giorni dall' accettazione dell' eventuale proposta, comprese eventuali modifiche alla struttura originaria, senza prezzi aggiuntivi."
Classe energetica A
Caratteristiche

Contatti
Inserzionista Iannizzi Nico
Aggiornato il 30 settembre 2025
 
	                         
	                         
	                         
	                         
	                        