ClickCase.it

Villetta in costruzione in zona residenziale

Casa indipendente in Vendita da Privato - Strada Comunale 88 San Giovannello 88, Enna

240 m² | più di 5 locali | € 125.000 | Segnala abuso

Descrizione

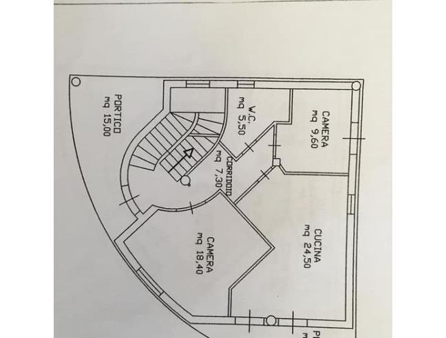
No intermediari. Vendo Villetta in costruzione causa trasferimento, a Enna ( Pergusa) in zona residenziale, a pochi metri da Villa Pastorelli, vicino università Kore e Lago di Pergusa. 5 locali + 2 bagni
Piano terra 70mq
Mansarda 70mq
garage seminterrato di 120mq
2200 mq di terreno.
All'interno scala all'americana e alcune pareti rotonde molto particolari.
Il costo per renderla abitabile vale perchè con il prezzo finale non si acquisterebbe neanche un appartamento. Per info: .

Contatti

Inserzionista Angela
Aggiornato il 08 giugno 2025

No contatti pubblicitari, grazie.

Invia un messaggio all'inserzionista

Casa Da Privato
La tua pubblicitĂ  qui, contattaci subito!

© 2005-2025 LaboWeb S.n.c. - P. Iva 10185480968
L'utilizzo del sito è subordinato all'accettazione delle Condizioni Generali, Informativa Privacy e Cookie Privacy - Impostazioni Privacy