ClickCase.it

Villetta a schiera a Latera (VT)

Villetta a schiera in Vendita da Privato - Latera

167 m² | 4 locali | 3 bagni | € 149.000 | Segnala abuso

Descrizione

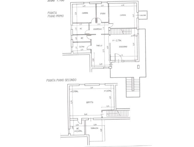
No intermediari. Privato vende villetta a schiera di 159 m² calpestabili a cui si accede da vialetto privato, esposta su 4 lati, con garage di 24 m² calpestabili posto a livello stradale, finestrato, gode dello scambio termico dell’adiacente locale caldaie che lo rende caldo in inverno e privo di umidità, può essere usato tranquillamente anche come magazzino vista l’importante metratura, dotato di acqua e luce. La casa è così composta: al primo piano è presente una spaziosa ed accogliente zona living con cucina Stosa a vista, e due locali adibiti a dispensa e lavanderia entrambi finestrati. Attraverso una doppia porta vetrata ad arco e un comodo disimpegno si accede alla zona notte composta da tre camere da letto e un bagno finestrato. Dalla zona living attraverso una comoda e caratteristica scala in legno si accede al secondo piano composto da un ampio locale mansardato con bagno finestrato e vasca, ripostiglio e terrazza panoramica di 13 m² aperta sul tetto.
Completano la proprietà ampi spazi esterni al piano terra affacciati sulle verdi aree comuni e al primo piano terrazzo di 25 m² che circonda due lati dell’immobile munito di tenda da sole a bracci Tempotest.
L’abitazione gode di una posizione panoramica privilegiata ed è molto luminosa; ristrutturata di recente si presenta in ottimo stato.
L’immobile, costruito negli anni ’80, è dotato di mura esterne isolate termicamente ed acusticamente (doppio muro in forati con intercapedine nella quale sono presenti pannelli in lana di roccia da 5 cm), finestre con infissi in legno dotati di doppio vetro, riscaldamento autonomo a gas e radiatori muniti di valvole termostatiche, più pompe di calore caldo/freddo e 2 stufe MCZ alimentate a biomassa, una per piano, che consentono di scaldare la casa con meno di 2,00 euro al giorno.
Questa soluzione rappresenta un’opportunità ideale per chi cerca ampi spazi abitativi in ottime condizioni, ambienti sani garantiti dall’eccellente coibentazione dell’immobile, affacciati sul verde in un contesto tranquillo, silenzioso e facilmente accessibile.
L’immobile ha tutta la documentazione in regola per l’eventuale richiesta di mutuo da parte dell’acquirente.
Disponibili video e foto a richiesta.
Immobile non soggetto all'obbligo di certificazione energetica

Caratteristiche

Stato: Ristrutturato
Anno costruzione: 1980
Piano: Su più livelli
Totale piani: 2
Cucina: Abitabile
Bagni: 3
Giardino: Privato
Camere da letto: 4
Riscaldamento: Autonomo
Climatizzazione: Si
Arredamento: Semi-arredato
Ascensore: No
Balcone/Terrazzo: Terrazzo
Box/Posto Auto: Singolo
Cantina: No
Classe energetica: Immobile non soggetto all'obbligo di certificazione energetica

Contatti

Inserzionista Alessandro
Annuncio del 14 febbraio 2026

No contatti pubblicitari, grazie.

Invia un messaggio all'inserzionista

La tua pubblicità qui, contattaci subito!

© 2005-2026 LaboWeb S.n.c. - P. Iva 10185480968
L'utilizzo del sito è subordinato all'accettazione delle Condizioni Generali, Informativa Privacy e Cookie Privacy - Impostazioni Privacy