ClickCase.it

Villa unifamiliare via Paganini

Villa in Vendita da Privato - Sinalunga

280 m² | più di 5 locali | 4 bagni | € 450.000 | Segnala abuso

Descrizione

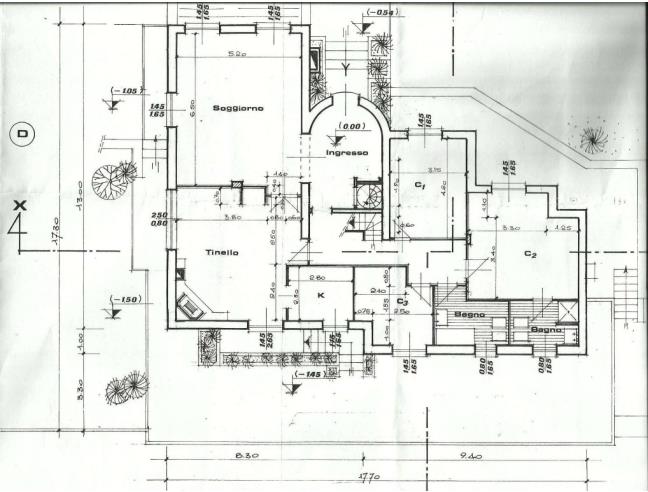
Vendita da privato. A Sinalunga Pieve, in posizione centrale e tranquilla, si propone in vendita una villa unifamiliare di 280 m² complessivi. L'immobile si compone di due unità abitative dotate di accessi indipendenti. La prima unità, con ingresso da via Paganini, ha una superficie di circa 200 m² e si articola su due livelli: al pianterreno un ampio ingresso introduce alla zona giorno composta da salotto, cucina, tinello con camino e accesso al terrazzo di 90 m²; la zona notte si compone invece di tre camere e due bagni. Attraverso una scala si accede al piano superiore dove sono stati ricavati un'ulteriore camera e un bagno.
La seconda unità abitativa, posta al piano seminterrato e con accesso da viale Trieste, ha una superficie di 80 m² e si compone di una cucina abitabile, un bagno e due camere.
Completano la proprietà un box auto di 30 m² e un ampio giardino privato.
L'immobile, costruito nel 1985 e in buone condizioni, si presta a interventi di riammodernamento e personalizzazione grazie all'ampia metratura e alla disposizione degli ambienti e offre la possibilità di unire i due appartamenti di cui si compone attraverso il ripristino della porta di comunicazione interna.
La posizione in cui è ubicato l'immobile, a poca distanza dalla stazione ferroviaria e dai principali servizi, lo rende la soluzione ideale per chi è alla ricerca della quiete e della riservatezza tipiche di una casa indipendente senza dover rinunciare alla comodità nella vita di tutti i giorni.
Classe energetica G

Caratteristiche

Stato: Abitabile
Anno costruzione: 1985
Totale piani: 2
Cucina: Cucinotto
Bagni: 4
Giardino: Privato
Camere da letto: più di 5
Riscaldamento: Autonomo
Climatizzazione: No
Arredamento: Vuoto
Balcone/Terrazzo: Terrazzo
Box/Posto Auto: Singolo
Classe energetica: Classe Energetica G

Contatti

Inserzionista Valina
Aggiornato il 18 dicembre 2025

No contatti pubblicitari, grazie.

Invia un messaggio all'inserzionista

Casa Da Privato
La tua pubblicità qui, contattaci subito!

© 2005-2026 LaboWeb S.n.c. - P. Iva 10185480968
L'utilizzo del sito è subordinato all'accettazione delle Condizioni Generali, Informativa Privacy e Cookie Privacy - Impostazioni Privacy