ClickCase.it

Villa indipendente con giardino. Libera.

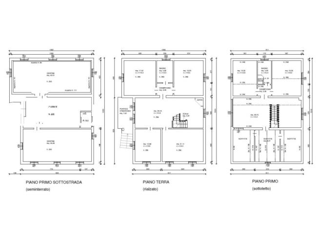
Villa in Vendita da Privato - Zona Centro città, Reggio Emilia

400 m² | più di 5 locali | 3 bagni | € 410.000 | Segnala abuso

Descrizione

Vendita da privato. Villa indipendente con giardino. Libera. Ristrutturazione in corso. Zona silenziosa priva di traffico. Agevolazione speciale per aziende con uso ufficio.

Caratteristiche

Stato: Da ristrutturare
Piano: Su più livelli
Totale piani: 3
Bagni: 3
Giardino: Privato
Cantina: Si

Contatti

Inserzionista Paolo
Aggiornato il 04 agosto 2025

No contatti pubblicitari, grazie.

Invia un messaggio all'inserzionista

Casa Da Privato
La tua pubblicità qui, contattaci subito!

© 2005-2025 LaboWeb S.n.c. - P. Iva 10185480968
L'utilizzo del sito è subordinato all'accettazione delle Condizioni Generali, Informativa Privacy e Cookie Privacy - Impostazioni Privacy