ClickCase.it

Villa bifamiliare (porzione 50%, piano primo)

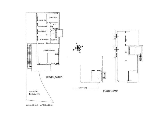
Villa in Vendita da Privato - Lungadige Attiraglio 24, Verona

251 m² | più di 5 locali | 2 bagni | Trattativa Riservata | Segnala abuso

Descrizione

Privato vende. Vendesi (privato) prestigiosa porzione di villa bifamiliare indipendente fronte Adige (50% piano primo, non arredato), sita nel comune di Verona in Lungadige Attiraglio 24, immersa nel verde a pochi minuti dal centro e di immediata vicinanza ai principali servizi (negozi, trasporti, scuole, ospedale).
Raffinato, esclusivo ed originale esempio di architettura organica anni ’70 (materiali naturali e armonia architettonica in continuità tra spazio costruito e ambiente naturale) su progetto del noto Arch. Lorenzo Rosa Fauzza autore di numerosi immobili nella provincia di Verona (stabilimento Abital, condominio Forma, chiesa del Sacro Cuore, ecc.) già collaboratore dell'Arch. Carlo Scarpa e "cicerone" nel suo viaggio in Italia dell'Arch. Frank Lloyd Wright.
Immobile interamente rivestito in mattoni (pieni) di argilla fatti a mano (Valdadige - Fornaci Valdadige) in prosecuzione nel grande salone della zona giorno senza soluzioni di continuità.

Immobile indipendente interamente circondato da giardini di proprietà con la zona giorno disposta a sud (fronte Adige) e zona notte disposta a nord (Torricelle) per il massimo comfort e benessere; aperture e finestre disposte su tutti i quattro lati per la massima luminosità e aerazione (nessun locale cieco o zone buie).
Il fabbricato si sviluppa su due piani fuori terra ed un piano seminterrato che confina su quattro lati con il terreno di pertinenza.
L’unità immobiliare oggetto della vendita è inserita al piano primo del fabbricato, lo stato di conservazione risulta ottimo, l’immobile è dotato di impianto idrico, termico ed elettrico; gli impianti sono stati parzialmente rimodernati negli anni.

Caratteristiche:
- superficie commerciale 251 mq (50% proprietà complessiva villa bifamiliare, porzione piano primo del fabbricato);
- 6 locali + 2 bagni (immobile non arredato);
- giardino protetto e in sicurezza di proprietà esclusiva (123 mq) per zona giochi, relax, ristoro, coltivazione orto ed altro;
- ulteriore giardino comune accessibile che circonda interamente l’immobile indipendente, senza servitù o altre strutture confinanti con le proprietà contigue;
- 2 entrate indipendenti padronali lato cucina e lato soggiorno con ampia scala di accesso privata in mattoni;
- ampia e imponente terrazza aperta e comunicante non chiusa, in continuità architettonica con il soggiorno per zona pranzo esterna e zona relax con esclusiva vista fronte Adige, possibilità di chiusura con vetrate (vepa) per aumentare la superficie della zona salone interno/esterno;
- luminosa e riservata terrazza lato cucina per zona pranzo esterna;
- meravigliosa e diretta vista fronte Adige (non obliqua, non parziale, non lontana) con ampie finestrature del grande soggiorno con 5 porte finestre;
- grande soggiorno a pianta libera (51 mq) fronte Adige (esempio: 1 zona pranzo + 3 zone salotto) disposto su due livelli (altezza 340 cm) con grande e moderno camino architettonico integrato nella grande parete a mattoni con fessura luminosa verticale a tutta altezza di forte impatto scenografico e luminoso realizzato in vetromattone;
- cantina lavanderia indipendente e chiusa con ampia zona nel garage per collocazione scaffalature, armadi, moto e biciclette con possibilità di installare wallbox e colonnine elettriche;
- 2 posti auto nell'auto rimessa + 2 posti auto nell'accesso al giardino privato;
- locale dedicato (livello piano terra) per centrale termica indipendente con caldaia a condensazione Viessmann (nessuna unità tecnica o camino è visibile e occupa spazio esterno o zone attigue);
- rivestimenti interno di pregio in marmo Botticino, porte interne in pregiato legno massello di mogano, cucina arredata su misura in essenza di frassino (Schiffini).

Privato vende, no intermediari, visibile previo appuntamento, contattare solo se realmente interessati. (disponibile dettagliata presentazione in pdf)
Classe energetica D

Caratteristiche

Stato: Ristrutturato
Piano: 1
Totale piani: 2
Cucina: Abitabile
Bagni: 2
Giardino: Privato
Camere da letto: 3
Riscaldamento: Autonomo
Climatizzazione: Si
Arredamento: Vuoto
Ascensore: No
Balcone/Terrazzo: Terrazzo
Box/Posto Auto: Doppio
Cantina: Si
Classe energetica: Classe Energetica D

Contatti

Inserzionista Bruno Cutino
Annuncio del 16 aprile 2026

No contatti pubblicitari, grazie.

Invia un messaggio all'inserzionista

La tua pubblicità qui, contattaci subito!

© 2005-2026 LaboWeb S.n.c. - P. Iva 10185480968
L'utilizzo del sito è subordinato all'accettazione delle Condizioni Generali, Informativa Privacy e Cookie Privacy - Impostazioni Privacy