ClickCase.it

villa bifamiliare

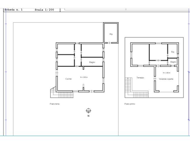
Villetta a schiera in Vendita da Privato - Zona Vaccarizzo, Catania

206 m² | più di 5 locali | 2 bagni | Trattativa Riservata | Segnala abuso

Descrizione

Privato vende. Propongo in vendita zona vaccarizzo /playa di catania (a 15minuti da aereoporto
fontanarossa e zona industriale )villa bifamiliare a schiera in zona tranquilla ,silenziosa e fresca a 1km dal mare e vicina ai lidi piu' in voga della playa .l'immobile ha una superficie complessiva di 206 metri quadri e comprende un totale di 9,5 locali distribuiti tra piano terra e primo con due bagni(uno per piano)Il bagno sotto dispone di vasca idromassaggio . La villa presenta una cucina/soggiorno in muratura con camino funzionante e spazi ampiamente distribuiti per garantire un buon utilizzo degli ambienti. La casa e' molto luminosa. E' possibile ricavare due appartamenti perche' l'immobile gode di due ingressi indipendenti , uno al piano inferiore e uno a quello superiore .Le caratteristiche esterne includono un terrazzo grande (in parte chiuso a vetri con predisposizione alla realizzazione di una cucina ), un balcone a giro, un giardino, posti auto interni e una piscina che al momento e' coperta ma che ,volendo ,si puo' ripristinare, oltre a un magazzino/deposito. Gli infissi sono in doppio vetro con strutture in metallo. Il riscaldamento è assente ma e' presente il camino che riscalda tutto il piano inferiore. L'immobile è in buono stato di manutenzione ed è abitabile, con costruzione risalente al 1980. La classe energetica dell'immobile è G. La proprietà è intera. Contattami per qualunque informazione, foto o per prenotare una visita. No agenzie immobiliari ,curiosi e perditempo.
Classe energetica G

Caratteristiche

Stato: Abitabile
Anno costruzione: 1980
Piano: Su più livelli
Totale piani: 2
Cucina: Abitabile
Bagni: 2
Giardino: Privato
Camere da letto: 3
Riscaldamento: Autonomo
Climatizzazione: No
Ascensore: No
Balcone/Terrazzo: Terrazzo
Box/Posto Auto: Posto auto scoperto
Cantina: Si
Classe energetica: Classe Energetica G

Contatti

Inserzionista v
Annuncio del 20 marzo 2026

No contatti pubblicitari, grazie.

Invia un messaggio all'inserzionista

La tua pubblicità qui, contattaci subito!

© 2005-2026 LaboWeb S.n.c. - P. Iva 10185480968
L'utilizzo del sito è subordinato all'accettazione delle Condizioni Generali, Informativa Privacy e Cookie Privacy - Impostazioni Privacy