ClickCase.it

Villa bellissima

Villa in Vendita da Privato - Ostuni

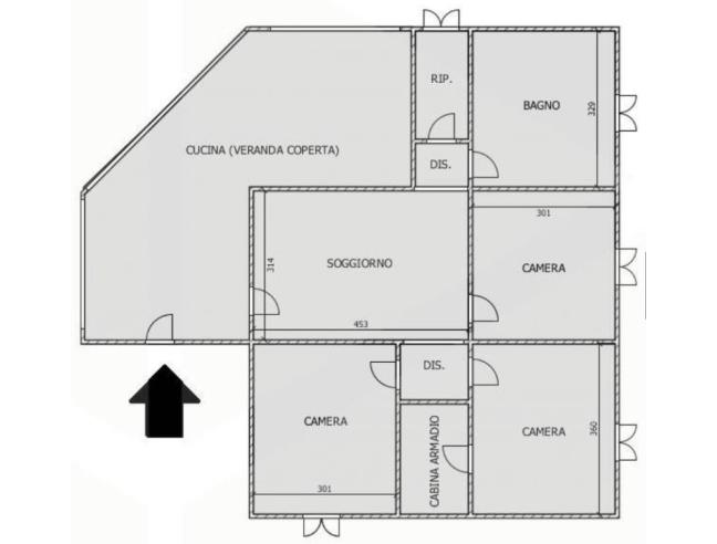
100 m² | 5 locali | 1 bagno | Trattativa Riservata | Segnala abuso

Descrizione

Vendita da privato. Vendo bellissima villa di 100mq a soli 3km dal centro di Ostuni
Zona tranquilla ,ma non isolata
Con cucina e sala da pranzo abitabile
Soggiorno
1camera matrimoniale con cabina armadio
2camerette
Bagno con vasca angolare e doccia
Ripostiglio
Impianti idrici ed elettrici fatti 2 anni fa
Esternamente ci sono 4000 mq di terreno con alberi da frutto ed ulivi,pozzo artesiano fatto 2 anni fa,fossa imoff ed una bellissima depandance attualmente adibita a deposito
Abitabile da subito senza lavori da fare
Per info contattatemi
NON SONO UN'AGENZIA ,MA UNA PRIVATA
TEL 3515610232
Classe energetica B

Caratteristiche

Stato: Ristrutturato
Piano: Piano terra
Cucina: Abitabile
Bagni: 1
Giardino: Privato
Camere da letto: 3
Riscaldamento: Autonomo
Classe energetica: Classe Energetica B

Contatti

Inserzionista Anna
Aggiornato il 01 dicembre 2025

Invia un messaggio all'inserzionista

Casa Da Privato
La tua pubblicitĂ  qui, contattaci subito!

© 2005-2026 LaboWeb S.n.c. - P. Iva 10185480968
L'utilizzo del sito è subordinato all'accettazione delle Condizioni Generali, Informativa Privacy e Cookie Privacy - Impostazioni Privacy