Villa alta prestazione energetica - CasaClima

Mira, Mira Taglio - Vendita da Privato

  • Villetta a schiera in Vendita da Privato - Via Giare 132, Mira

    270 m² | più di 5 locali | 4 bagni | € 230.000

    Vendita da privato. Progetto e costruzione di villa ad alta prestazione energetica, strutture portanti per tetto e solai in legno lamellare a vista , pareti XLAM , copertura ventilata, massima personalizzazione di progettazione e divisione degli spazi.
    Certificazione antisismica e collaudo classe energetica; standard CasaClima
    Possibile frazionamento in 2 unita’ per ciascuna villa
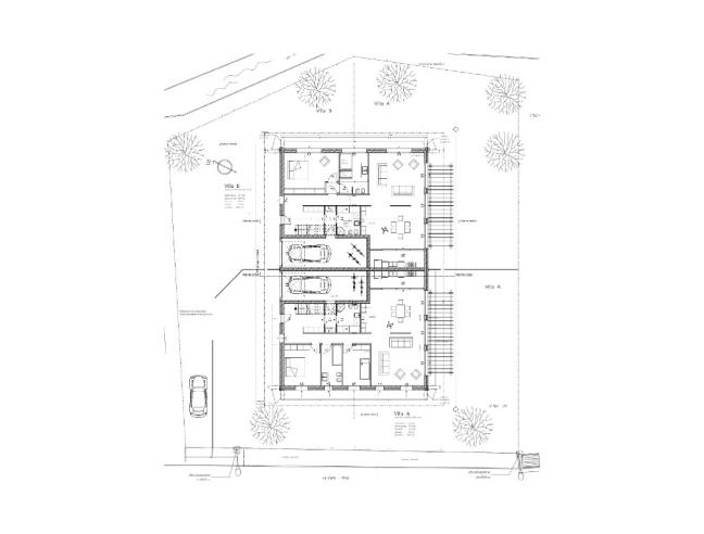
    Zona adicente all’ingresso della Laguna Sud e darsena per alaggio barche;
    in posizione strategica tra Centro Nave de Vero e accesso autostrade
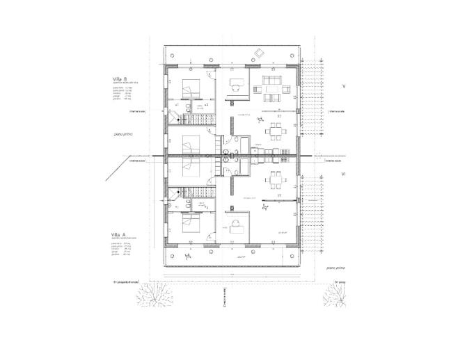
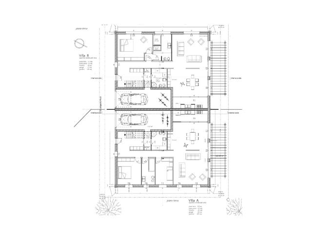
    Spazi utili : piano terra 125 mq / primo 125 mq / garage 23 mq / giardino 480 – 530 mq / terrazza
    Progettazione personalizzabile, accessibilita’ per disabili
    Costruzione a secco con strutture progettate a misura e prefabricate, tempi di esecuzione 12 mesi dalla firma del preliminare
    1) Vendita finito esterno
    Pareti intonacate - serramenti esterni e soglie – solai interni (pronti per massetto) – copertura completa – canne di ventilazione – canne fumarie - colonne scarico – rete scarichi esterne – cavidotti e passaggi per utenze – pareti perimetrali al grezzo per alloggiamento impiantistica (da rivestire con cartongesso) – recinzioni – cancelli – scala interno in metallo (da rivestire)

    2) Vendita finito esterno / interno (vedi capitolato)
    Divisori interni - pavimentazioni finite – rivestimento scale – porte interne – bagni finiti (vedi capitolato) – riscaldamento radiante – predisposizione per condizionamneto – impianti elettrici (vedi capitolato) – reti scarico – rete gas
    Impianto di riscaldamento / condizionamento: Prezzo da concordare in funzione di scelta (pompa di calore aria / aria, pompa di calore a gas / caldaia a gas / generatore commune a 2 unita’ oppure autonomo …
    Possibile geotermia; parte di edificio bivilla su terreno indipendente
    Privato , ingegnere professionista vende e costruisce, rapporto diretto e garantito
    Prezzo a partire da 230.000 euro
    Classe energetica A4 14,00 kWh/m²a


Caratteristiche
Stato: Nuovo/In costruzione
Piano: Su più livelli
Totale piani: 2
Cucina: Abitabile
Bagni: 4
Giardino: Privato
Camere da letto: 4
Riscaldamento: Autonomo
Climatizzazione: Predisposizione
Arredamento: Vuoto
Ascensore: No
Balcone/Terrazzo: Terrazzo
Box/Posto Auto: Singolo
Classe energetica: Classe Energetica A4
IPE: 14,00 kWh/m²a

Contatti

No contatti pubblicitari, grazie.

Invia un messaggio all'inserzionista

Inserzionista Giuseppe Bisotto
Aggiornato il 25 ottobre 2025

Segnala abuso