ClickCase.it

Villa abitabile in Vendita

Casa indipendente in Vendita da Privato - Zona Casali D'aschi, Gioia dei Marsi

340 m² | più di 5 locali | 2 bagni | € 300.000 | Segnala abuso

Descrizione

No intermediari. Villa polifunzionale a Casali d'Aschi, frazione di Gioia dei Marsi (Aq) con ampio giardino 700 mq. e terreno annesso 8000 mq.

Villa costruita nel 1929, in stile razionalista, Decò, con criteri di costruzione antisismici.
Il precedente proprietario proveniva da vecchie famiglie nobili.
La villa è tuttora abitabile ed è stata ristrutturata negli anni '90.
La costruzione sovrasta la via principale della frazione Casali D'Aschi ed è circondata da ampio giardino e pertinenze di circa 700 mq, con alberi da frutta e fiori.
Da un lato del giardino è presente una costruzione, piano terra, ad uso autorimessa, magazzino, laboratorio, di circa 60 mq.
Alle spalle del complesso appena descritto (villa, giardino, autorimessa, ecc.) si estende un terreno di circa 8000 mq., in leggera pendenza verso la montagna, con una larghezza media di circa 70 metri, per una profondità media di 115 metri, coltivato fino a venti anni fa con vigneto e grano, e negli ultimi anni con erba medica.
Sono in parte edificabili, circa 900 mq.
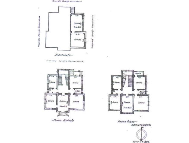
La villa è composta:
- da un piano seminterrato dove è presente una cantina con attrezzature per la vinificazione (vasca in cemento con pigiatrice, torchio, botti, damigiane, ecc.);
- da un piano rialzato composto da cucina con caminetto, salone, ingresso soggiorno, studio, camera, atrio scalinata interna, bagno più servizio;
- da un primo piano con disimpegno abitabile d'accesso alle 5 (cinque) camere, balcone, bagno più servizio.
Caratteristiche e posizione della proprietà:
periferia, in un borgo e gruppo di case della vallata antecedente la conca del Fucino;
piazza principale a 30 metri, con chiesa parrocchiale, scuola elementare, ufficio postale, 2 bar ritrovo e ristoro, 2 alimentari, ampio parcheggio pubblico;
possibilita' di installazione piscina, possibilità d'uso turistico, Bed & Breakfast.
La frazione Casali d'Aschi di Gioia dei Marsi si trova a 9 km dal casello autostradale dell'A25 Roma-Pescara, con uscita al casello di Pescina.
L`edificio è ubicato in una zona ricca di interessi naturalistici, storici e culturali.
Infatti, a circa 26 km di distanza si trova Pescasseroli, sede del parco Nazionale d`Abruzzo, dove vive ancora l`orso Marsicano ed e` possible effetuare escursioni sulle più belle montagne dell`appennino Abruzzese. Il luogo e` situato a sud –est della piana del Fucino, che fu il terzo piu grande lago italiano fino al prosciugamento del lago già all`epoca dell`imperatore Claudio.
Inoltre, il Borgo di Casale d`Aschi [Ascilum Marsorum] sorge nella terra dei Marsi, antico popolo italico che dal lll sec. a.c. combattè valorosamente contro l`espansionismo dei Romani.
Di quell`epoca rimangono numerose testimoniaze archeologiche come il sito di Alba Fucens. Nei dintorni esistono anche testimonianze delle successive dominazioni, come il castello normanno di Federico II a Celano ed il castello Piccolomini ad Ortucchio.
Infine, ad appena 9 km di distanza sorge la citta di Pescina dove sono nati due personaggi famosi, come il Cardinale Mazzarino, gia primo ministro alla Corte di Francia nel '600, ed Ignazio Silone, scrittore del '900 di fama internazionale, autore di romanzi e saggi fondamentali sulle condizioni di vita ed il riscatto sociale dei contadini di queste terre. Di entrambi si possono visitare le case natali.
Oggi la vita quotidiana di Casali d'Aschi è ancora ricca della tradizione contadina.
Infatti è naturale l'incontro lungo le vie con mezzi di lavorazione dei terreni (trattori, carretti a motore, ecc.) e con animali d'allevamento e da fattoria.
E' l'ambiente ideale per una nuova vita, con ritmi consoni all'uomo amante della natura e degli ampi spazi.
...Bruno...

Video

Caratteristiche

Stato: Abitabile
Anno costruzione: 1929
Piano: Su più livelli
Totale piani: 3
Cucina: Abitabile
Bagni: 2
Giardino: Privato
Camere da letto: 5
Riscaldamento: Assente
Balcone/Terrazzo: Balcone
Box/Posto Auto: Doppio
Cantina: Si

Contatti

Inserzionista BRUNO
Aggiornato il 10 agosto 2025

Invia un messaggio all'inserzionista

Casa Da Privato
La tua pubblicità qui, contattaci subito!

© 2005-2025 LaboWeb S.n.c. - P. Iva 10185480968
L'utilizzo del sito è subordinato all'accettazione delle Condizioni Generali, Informativa Privacy e Cookie Privacy - Impostazioni Privacy