Villa a rustico in Altamura vicino all'ospedale nuovo

Altamura - Vendita da Privato

  • Villa in Vendita da Privato - Altamura

    660 m² | più di 5 locali | 4 bagni | € 295.000

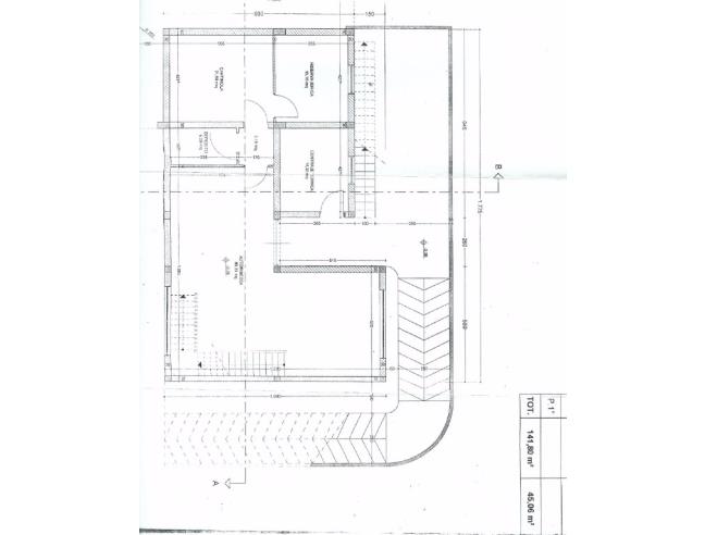
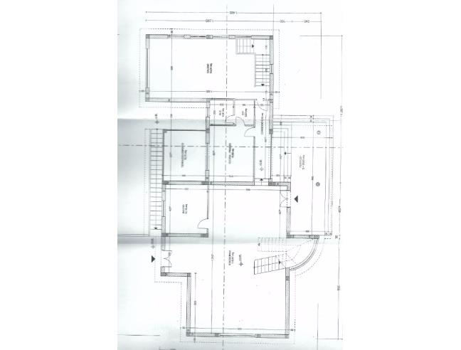
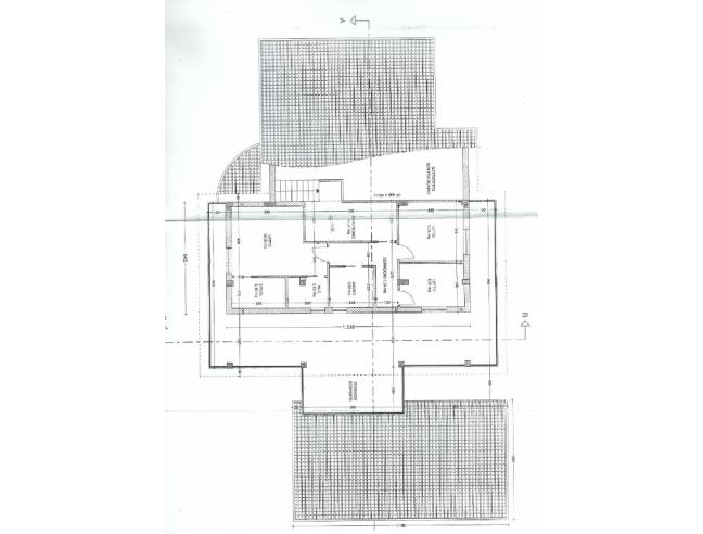
    Vendita da privato. Si trova su via Gravina prima dell'ospedale Strada Lama Sambuco Villa in costruzione con progetto piano seminterrato mq. 290 di coperto e mq 400 circa di scoperto per garage, piano rialzato mq. 290, possibilità di fare un primo piano per mq. 160 oltre a mq 1.100 di terreno recintato in cls. Parte del fabbricato è commerciale e artigianale. Potete contattarmi al


Caratteristiche
Stato: Nuovo/In costruzione
Anno costruzione: 2007
Totale piani: 3
Cucina: Abitabile
Bagni: 4
Giardino: Privato
Camere da letto: più di 5
Riscaldamento: Autonomo
Climatizzazione: Predisposizione
Ascensore: Si
Balcone/Terrazzo: Terrazzo
Box/Posto Auto: Doppio
Cantina: Si

Contatti

Invia un messaggio all'inserzionista

Inserzionista CRC SAS
Aggiornato il 11 dicembre 2025

Segnala abuso