ClickCase.it

Vendo

Appartamento in Vendita da Privato - Zona Torvergata, Roma

78 m² | 3 locali | € 199.000 | Segnala abuso

Descrizione

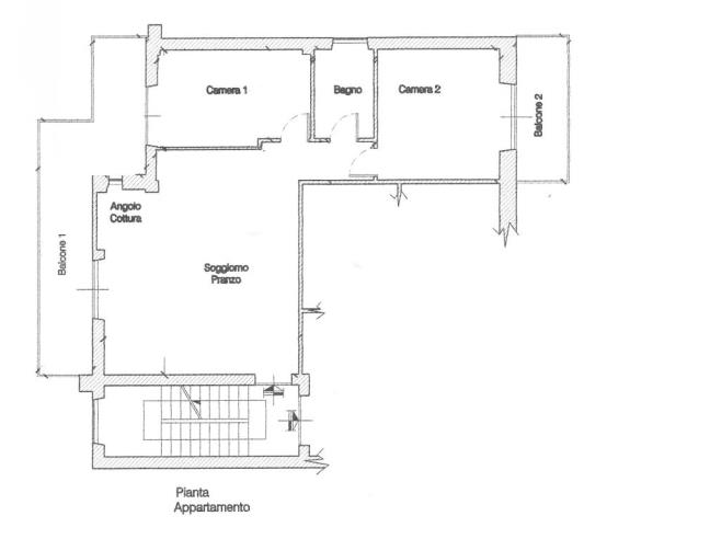
Vendita da privato. Appartamento splendida posizione contesto tranquillo con villette, zona Tuscolana Ponte Linari, vicino a Via di Casal Morena, Romanina, Università Tor Vergata : ingresso-salone, cucina a penisola, camere matrimoniale e camera ragazzi, bagno, due balconi vivibili da 1,50 m. in ampiezza, tripla esposizione sud/est, climatizzata, ampie finestre, pavimento gres effetto marmo, possibilità arredamento moderno.
Immobile non soggetto all'obbligo di certificazione energetica

Video

Caratteristiche

Classe energetica: Immobile non soggetto all'obbligo di certificazione energetica

Contatti

Inserzionista Pino
Aggiornato il 21 luglio 2025

Invia un messaggio all'inserzionista

Casa Da Privato
La tua pubblicitĂ  qui, contattaci subito!

© 2005-2025 LaboWeb S.n.c. - P. Iva 10185480968
L'utilizzo del sito è subordinato all'accettazione delle Condizioni Generali, Informativa Privacy e Cookie Privacy - Impostazioni Privacy