ClickCase.it

VENDO

Appartamento in Vendita da Privato - Poppi

120 m² | più di 5 locali | 1 bagno | € 125.000 | Segnala abuso

Descrizione

No intermediari. Vendesi appartamento su 2 livelli più cantina di 120 mq totali in località Moggiona comune di Poppi (Ar) a due passi dal parco nazionale delle foreste casentinesi.
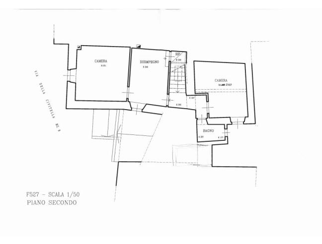
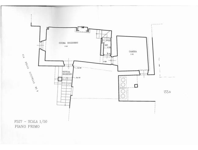
L'appartamento è così composto:
- Piano terra: cantina con zona lavanderia con accesso dall'esterno.
- Piano primo: zona soggiorno/cottura con cucina in muratura e camino, una camera ed un ripostiglio.
- Piano secondo: 3 camere, bagno e ripostiglio
Completa la proprietà un piccolo spazio esterno di uso esclusivo.

Video

Caratteristiche

Stato: Ristrutturato
Piano: Su più livelli
Totale piani: 3
Bagni: 1
Giardino: Privato
Camere da letto: 4
Riscaldamento: Autonomo
Arredamento: Semi-arredato
Cantina: Si

Contatti

Inserzionista tommaso vannini
Aggiornato il 01 dicembre 2025

Invia un messaggio all'inserzionista

Casa Da Privato
La tua pubblicità qui, contattaci subito!

© 2005-2026 LaboWeb S.n.c. - P. Iva 10185480968
L'utilizzo del sito è subordinato all'accettazione delle Condizioni Generali, Informativa Privacy e Cookie Privacy - Impostazioni Privacy