ClickCase.it

VENDO

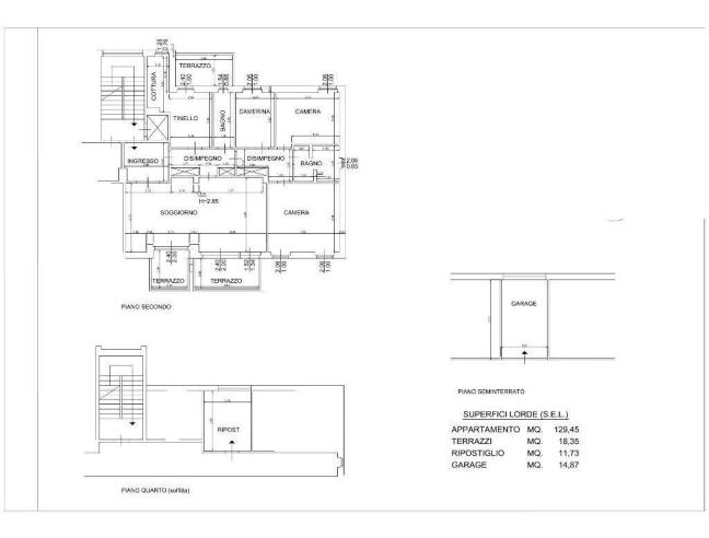
Appartamento in Vendita da Privato - Via Giovanni Paganucci 4, Livorno

147 m² | 5 locali | 2 bagni | € 370.000 | Segnala abuso

Descrizione

No intermediari. VIA PAGANUCCI: in elegante e prestigioso condominio con giardino e ampi spazi, vicino a Villa Fabbricotti, servizio di portierato, vendo appartamento secondo piano, luminoso, in perfetto stato di conservazione, ottime rifiniture, infissi interni di buona fattura, dotato di tre grandi terrazzi. L’immobile è composto da ingresso, salone doppio con due terrazzi (di cui uno abitabile), cucinotto– tinello e terrazzo di servizio con lavabo in granito, zona notte con due camere matrimoniali, camera singola, doppi servizi con finestra, armadi a muro. Completano l’appartamento una comoda soffitta e un garage nello stesso complesso. Possibilità di acquisto di parte della mobilia.
Classe energetica G 363,00 kWh/m²a

Caratteristiche

Stato: Abitabile
Anno costruzione: 1977
Piano: 2
Totale piani: 3
Cucina: Abitabile
Bagni: 2
Giardino: Comune
Camere da letto: 3
Riscaldamento: Centralizzato
Climatizzazione: No
Arredamento: Vuoto
Ascensore: Si
Balcone/Terrazzo: Terrazzo
Box/Posto Auto: Singolo
Cantina: Si
Classe energetica: Classe Energetica G
IPE: 363,00 kWh/m²a

Contatti

Inserzionista laura evola
Annuncio del 06 aprile 2026

No contatti pubblicitari, grazie.

Invia un messaggio all'inserzionista

La tua pubblicità qui, contattaci subito!

© 2005-2026 LaboWeb S.n.c. - P. Iva 10185480968
L'utilizzo del sito è subordinato all'accettazione delle Condizioni Generali, Informativa Privacy e Cookie Privacy - Impostazioni Privacy