ClickCase.it

Vendo Immobile Rustico di 950m² e 7000m² di giardino

Rustico/Casale in Vendita da Privato - Via Avvocato Antonino Pino 100, Barcellona Pozzo di Gotto

950 m² | più di 5 locali | € 600.000 | Segnala abuso

Descrizione

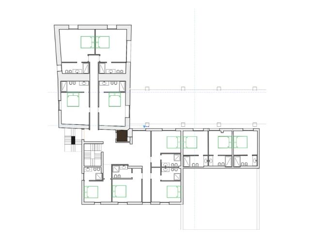
Vendita da privato. Immobile allo stato rustico di 950m² (ca) consistente di due parti, una corrispondente ad un casale ristrutturato e l'altra parte moderna. In cemento armato, è formato da una cantina di 200m², un piano terra di 400m², primo piano di 300m², mansarda di 80m². Gli impianti per 7 bagni sono presenti. è previsto anche uno spazio per ascensore interno. La struttura costruita ad uso privato puù essere adibita a struttura ricettiva, casa per anziani, clinica privata, b&b, e altro.
Le planimetrie caricate mostrano il progetto per la conversione in b&b.

Contatti

Inserzionista Immobil Biondo
Aggiornato il 02 novembre 2025

No contatti pubblicitari, grazie.

Invia un messaggio all'inserzionista

Casa Da Privato
La tua pubblicità qui, contattaci subito!

© 2005-2026 LaboWeb S.n.c. - P. Iva 10185480968
L'utilizzo del sito è subordinato all'accettazione delle Condizioni Generali, Informativa Privacy e Cookie Privacy - Impostazioni Privacy