ClickCase.it

Vendo Appartamento Torre Sole FIUMARA

Appartamento in Vendita da Privato - Zona Sampierdarena, Genova

87 m² | 5 locali | 1 bagno | € 340.000 | Segnala abuso

Descrizione

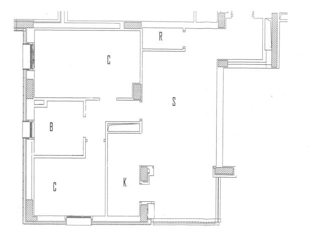
No provvigioni. No agenzia; 11mo piano (di 19) appartamento mq 87 commerciali; luminosissimo/panoramico vista mare (esposto sud e ovest), nella TORRE SOLE composto da: ampio salone con cucina, bagno (doccia con idromassaggio), 2 camere, ripostiglio, loggia esposta a sud. Comprese nel prezzo due cantine (una al piano e un’altra al piano -2 di 9mq) e box di pertinenza (auto + moto) di mq 26 al piano -2 del medesimo stabile con accesso diretto ascensori (assenza barriere architettoniche). La Classe energetica in corso di certificazione. Due ascensori più un montacarichi. La porta finestra del soggiorno è dotata di tapparella elettrica, è presente un condizionatore inverter trial (caldo freddo) in tutte le stanze; l’immobile e allacciato al teleriscaldamento; il modulo di contabilizzazione è stato sostituito nel 2023. Porta ingresso blindata, videocitofono, allaccio gas solo per uso domestico, connesso con fibra cablata nell’appartamento.
Possibilità cessione parziale arredamento (cucina, bagno, armadio a muro) se interessati.

Caratteristiche

Stato: Abitabile
Anno costruzione: 2002
Piano: più di 7
Totale piani: 19
Cucina: Angolo cottura
Bagni: 1
Giardino: Comune
Camere da letto: 2
Riscaldamento: Autonomo
Climatizzazione: Si
Arredamento: Semi-arredato
Ascensore: Si
Balcone/Terrazzo: Balcone
Box/Posto Auto: Singolo
Cantina: Si

Contatti

Inserzionista Renato Idini
Aggiornato il 30 ottobre 2025

No contatti pubblicitari, grazie.

Invia un messaggio all'inserzionista

Casa Da Privato
La tua pubblicità qui, contattaci subito!

© 2005-2025 LaboWeb S.n.c. - P. Iva 10185480968
L'utilizzo del sito è subordinato all'accettazione delle Condizioni Generali, Informativa Privacy e Cookie Privacy - Impostazioni Privacy