ClickCase.it

Vendo appartamento di 3 locali

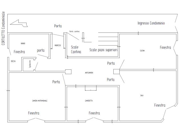
Appartamento in Vendita da Privato - Via Torretta 2, Faenza

80 m² | 3 locali | 1 bagno | Trattativa Riservata | Segnala abuso

Descrizione

Privato vende. Appartamento composto da cucina abitabile, sala , cameretta , camera matrimoniale , bagno e cantina .
Classe energetica G

Caratteristiche

Stato: Abitabile
Anno costruzione: 1959
Piano: Piano rialzato
Totale piani: 3
Cucina: Abitabile
Bagni: 1
Giardino: Comune
Camere da letto: 2
Riscaldamento: Autonomo
Climatizzazione: Si
Arredamento: Vuoto
Ascensore: No
Balcone/Terrazzo: No
Box/Posto Auto: No
Cantina: Si
Classe energetica: Classe Energetica G

Contatti

Inserzionista carlo
Annuncio del 22 febbraio 2026

No contatti pubblicitari, grazie.

Invia un messaggio all'inserzionista

Casa Da Privato
La tua pubblicitĂ  qui, contattaci subito!

© 2005-2026 LaboWeb S.n.c. - P. Iva 10185480968
L'utilizzo del sito è subordinato all'accettazione delle Condizioni Generali, Informativa Privacy e Cookie Privacy - Impostazioni Privacy