ClickCase.it

Vendo Appartamento/Attico

Attico in Vendita da Privato - Viale della Resistenza 168, Falerone

96 m² | più di 5 locali | € 125.000 | Segnala abuso

Descrizione

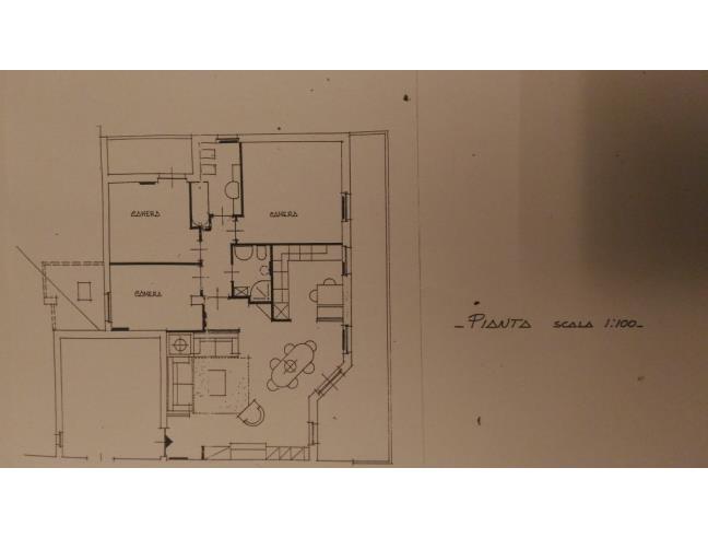
Vendita da privato. Appartamento nuovo al piano secondo lato est di mq. 96, balconi mq. 24 e garage (n.3) mq. 34. Al centro di Piane di Falerone, l'attico si trova al secondo piano di piccola palazzina edificata nel 2003. L'appartamento, essendo di recente edificazione, risponde a tutte quelle che sono le moderne caratteristiche tecnico-costruttive, sia nelle finiture scelte con cura che negli impianti, ed infatti troviamo: pavimentazione in parquet per la parte notte, ceramiche di pregio per il bagno, porte laccate, etc. Poco margine di trattativa.
Classe energetica C

Caratteristiche

Classe energetica: Classe Energetica C

Contatti

Inserzionista STEFANO
Aggiornato il 30 dicembre 2025

Invia un messaggio all'inserzionista

Casa Da Privato
La tua pubblicitĂ  qui, contattaci subito!

© 2005-2026 LaboWeb S.n.c. - P. Iva 10185480968
L'utilizzo del sito è subordinato all'accettazione delle Condizioni Generali, Informativa Privacy e Cookie Privacy - Impostazioni Privacy