132 m² | 5 locali | 2 bagni | € 145.000 | Segnala abuso
 
	                        Descrizione
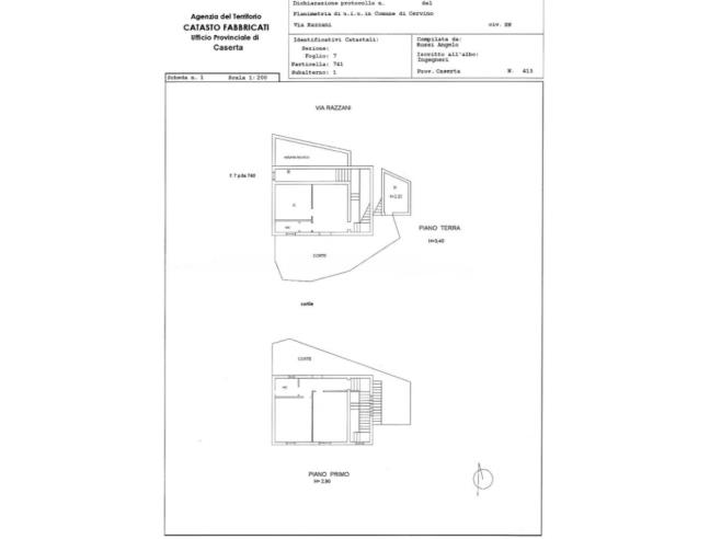
No agenzia. Vendesi causa trasferimento soluzione libera su tre lati in zona collinare panoramica nei pressi del campo sportivo a ridosso dal centro, di Mq 132 interni,ristrutturata nel 2010 compreso impianto idrico e illuminazione,con ottime rifiniture.La soluzione si sviluppa su due livelli:al piano rialzato troviamo salone ampio con camino,travi a vista,rivestimento pareti in legno e pavimento grès porcellanato effetto cotto,una grande cucina anch’essa con rivestimento in legno entrambi godono del l’accesso diretto all’ampio ed esclusivo terrazzo di 50 Mq coperto da tettoia in legno,bagno di servizio,zona lavanderia e ripostiglio,la soluzione gode di un ampia scala iVendesi causa trasferimento soluzione libera su tre lati in zona collinare panoramica nei pressi del campo sportivo a ridosso dal centro, di Mq 132 interni,ristrutturata nel 2010 compreso impianto idrico e illuminazione,con ottime rifiniture.La soluzione si sviluppa su due livelli:al piano rialzato troviamo salone ampio con camino,travi a vista,rivestimento pareti in legno e pavimento grès porcellanato effetto cotto,una grande cucina anch’essa con rivestimento in legno entrambi godono del l’accesso diretto all’ampio ed esclusivo terrazzo di 50 Mq coperto da tettoia in legno,bagno di servizio,zona lavanderia e ripostiglio,la soluzione gode di un ampia scala interna luminosa che porta al primo piano così suddiviso: ampio corridoio, 2 grandi camere,un bagno con vasca doccia idromasssggio e un terrazzo di 20 Mq. anch’esso coperto da pergolato in legno,la soluzione gode di doppio ingresso,inoltre dispone di un ampio ambiente esterno adibito a legnaia/cantina,un sottotetto con possibilità di sopraelevazione e parcheggio coperto. In aggiunta la soluzione gode di sistema di video sorveglianza ,sistema di allarme e condizionatori,termoconvettore,inferriate su tutte le porte e finestre e due splendidi pergolati in legno su entrambi i tnterna luminosa che porta al primo piano così suddiviso: ampio corridoio, 2 grandi camere,un bagno con vasca doccia idromasssggio e un terrazzo di 20 Mq. anch’esso coperto da pergolato in legno,la soluzione gode di doppio ingresso,inoltre dispone di un ampio ambiente esterno adibito a legnaia/cantina,un sottotetto con possibilità di sopraelevazione e parcheggio coperto. In aggiunta la soluzione gode di sistema di video sorveglianza ,sistema di allarme e condizionatori,termoconvettore,inferriate su tutte le porte e finestre e due splendidi pergolati in legno su entrambi i terrazzi.
Caratteristiche
Contatti
Inserzionista Veronica
Aggiornato il 10 settembre 2025
 
	                         
	                         
	                         
	                         
	                         
	                        