ClickCase.it

Vendesi Rustico sull’Appennino Tosco-Emiliano

Rustico/Casale in Vendita da Privato - Via A. Malaspina 8, Ottone

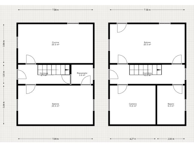
250 m² | più di 5 locali | € 53.000 | Segnala abuso

Descrizione

Vendita da privato. In un pittoresco paesino immerso nel verde dell’Appennino Tosco-Emiliano, in provincia di Piacenza,
si trova questo splendido rustico su tre piani con mansarda e cantina.
La proprietà include cascina/fienile e nelle immediate vicinanze si trova un appezzamento di terreno agricolo.

La casa, ideale per una famiglia numerosa o per chi desidera avviare un progetto di bed & breakfast,
offre ampi spazi e una vista mozzafiato sulla natura circostante.

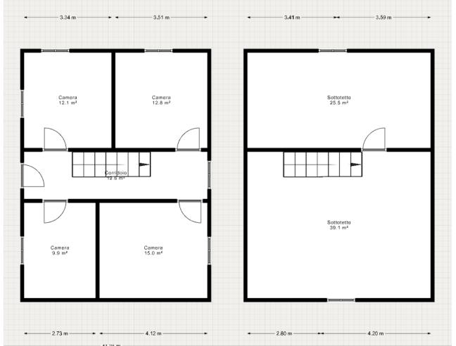
La proprietà dispone di cinque camere da letto e un bagno, distribuiti su tre piani,
con una mansarda che può essere utilizzata come ulteriore spazio abitativo o di stoccaggio.
Tetto e persiane in alluminio nuove e infissi piano terra con doppi vetri.
La cantina offre ampio spazio per conservare vini o altri beni.

Abitata fino a 3 anni fa; tutte le utenze sono ancora allacciate.

Situata a soli 20 minuti da Ottone, dove troverete tutti i servizi e negozi necessari, la casa è perfetta per chi cerca tranquillità e contatto con la natura,
senza rinunciare alla comodità di avere tutto a portata di mano.
Inoltre, la posizione strategica permette di raggiungere il mare in circa un’ora e quaranta minuti,
offrendo così la possibilità di godere sia della montagna che del mare.

Non perdere l’occasione di vivere in un luogo incantevole e ricco di storia. Contattaci per maggiori informazioni e per organizzare una visita!
Classe energetica G

Caratteristiche

Classe energetica: Classe Energetica G

Contatti

Inserzionista Giovanna
Aggiornato il 04 agosto 2025

No contatti pubblicitari, grazie.

Invia un messaggio all'inserzionista

Casa Da Privato
La tua pubblicità qui, contattaci subito!

© 2005-2026 LaboWeb S.n.c. - P. Iva 10185480968
L'utilizzo del sito è subordinato all'accettazione delle Condizioni Generali, Informativa Privacy e Cookie Privacy - Impostazioni Privacy