ClickCase.it

vendesi capannone

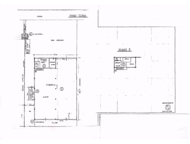
Capannone in Vendita da Privato - Via Ancona 14, Calendasco

1000 m² | 5 locali | 3 bagni | € 295.000 | Segnala abuso

Descrizione

No intermediari. Cedesi Capannone di circa 900 mq. oltre ad uffici su due piani ed ampia area cortilizia di circa 600 mq.
Classe energetica G 175,00 kWh/m³a

Caratteristiche

Stato: Abitabile
Piano: Piano terra
Totale piani: 2
Superficie esterna: 1000 m²
Superficie uffici: 150 m²
Bagni: 3
Classe energetica: Classe Energetica G
IPE: 175,00 kWh/m³a

Contatti

Inserzionista Elio
Aggiornato il 28 gennaio 2026

No contatti pubblicitari, grazie.

Invia un messaggio all'inserzionista

Casa Da Privato
La tua pubblicità qui, contattaci subito!

© 2005-2026 LaboWeb S.n.c. - P. Iva 10185480968
L'utilizzo del sito è subordinato all'accettazione delle Condizioni Generali, Informativa Privacy e Cookie Privacy - Impostazioni Privacy