ClickCase.it

Vendesi alloggio ampia metratura

Appartamento in Vendita da Privato - Zona Centro Europa, Torino

150 m² | più di 5 locali | € 300.000 | Segnala abuso

Descrizione

No provvigioni. Appartamento posto al terzo piano in palazzo di nove costruito fine anni 60 posto nei pressi di Piazza Omero, Mirafiori nord. La zona è a carattere residenziale nella zona sud-ovest di Torino, tutti i servizi di prossimità sono raggiungibili a piedi, comodo l'accesso alla tangenziale e nella zona sono presenti diverse aree con verde pubblico.
Stabile con doppio ascensore, doppio montacarichi e servizio portineria con residenza portinaio.
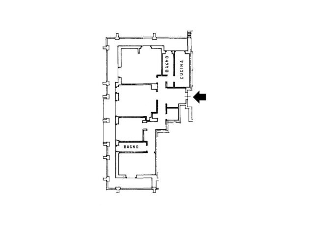
L'appartamento di 150 mq commerciali, si sviluppa con quattro vani, cucina, doppio servizio igienico il tutto posto a raggiera, il balcone è a ferro di cavallo e abbraccia tutte le stanze con esposizione prevalente a sud e sono molto luminose.
Le stanze hanno taglio regolare, con soffitti alti 3.00 mt I pavimenti sono in marmo, in legno in una camera e ceramica in bagno e cucina.
L'acqua calda è fornita da un bolier elettrico da 80 It. in bagno e un altro è presente in cucina.
Il riscaldamento è centralizzato con teleriscaldamento, sui caloriferi sono poste le contatermie e le valvole termostatiche.
Gli infissi esterni sono originali in legno tipo douglas con doppio vetro, le serrande avvolgibili sono coibentate e corazzate in alluminio, le pareti esterne perimetrali sono coibentate con isolante insuflato nelle intercapedini.
Le porte intere sono originali in legno bianco, il portoncino d'ingresso blindato.
L’alloggio è raggiunto da connessione internet mediante fibra ottica.
Completa la proprietà una cantina al piano -1 e numero box auto doppio pertinenziale, più secondo box doppio annesso e confinante.

Contatti

Inserzionista Marco Cabiati
Annuncio del 11 novembre 2025

No contatti pubblicitari, grazie.

Invia un messaggio all'inserzionista

Casa Da Privato
La tua pubblicità qui, contattaci subito!

© 2005-2026 LaboWeb S.n.c. - P. Iva 10185480968
L'utilizzo del sito è subordinato all'accettazione delle Condizioni Generali, Informativa Privacy e Cookie Privacy - Impostazioni Privacy