ClickCase.it

TRIVANI

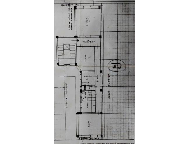
Appartamento in Vendita da Privato - Via Umberto I 304, Catania

90 m² | più di 5 locali | 2 bagni | € 180.000 | Segnala abuso

Descrizione

No agenzia. TRIVANI MQ 115 PIENO CENTRO CATANIA CLIMATIZZATO - 2 CAMERE DA LETTO , AMPIO SALONE E CUCINA ABITABILE, BAGNO CON SEONDO BAGNO LAVANDERIA VICINO FUTURA CITTADELLA GIUDIZIARIA IDEALE ANCHE COME STUDIO PROFESSIONALE.
ASTENERSI ASSOLUTAMENTE AGENTI O AGENZIE IMMOBILIARIE - LIBERO DAL 01/12/2026
Classe energetica E

Caratteristiche

Stato: Abitabile
Piano: 3
Cucina: Abitabile
Bagni: 2
Camere da letto: 2
Riscaldamento: Assente
Climatizzazione: Si
Arredamento: Semi-arredato
Ascensore: Si
Balcone/Terrazzo: Balcone
Box/Posto Auto: No
Cantina: No
Classe energetica: Classe Energetica E

Contatti

Inserzionista Mario
Annuncio del 18 aprile 2026

No contatti pubblicitari, grazie.

Invia un messaggio all'inserzionista

La tua pubblicitĂ  qui, contattaci subito!

© 2005-2026 LaboWeb S.n.c. - P. Iva 10185480968
L'utilizzo del sito è subordinato all'accettazione delle Condizioni Generali, Informativa Privacy e Cookie Privacy - Impostazioni Privacy