ClickCase.it

Trilocale via Tripoli 28, Roma

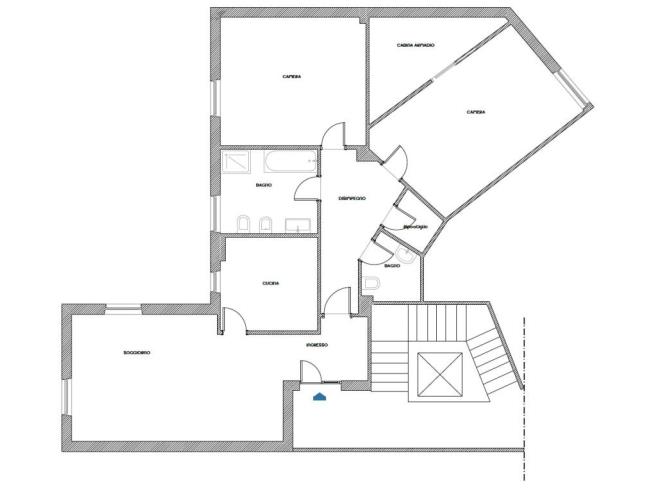
Appartamento in Vendita da Privato - Zona Nomentano, Roma

120 m² | 3 locali | 2 bagni | € 490.000 | Segnala abuso

Descrizione

No intermediari. PRIVATO VENDE Appartamento mq. 120 Ristrutturato con Cura
Composto da Salone, Cucina, 2 Ampie Camere, Cabina Armadio
Doppi servizi, Soppalchi e Ripostiglio.
L’Appartamento è Climatizzato, con Pavimentazione in Parquet, Infissi in Alluminio, Avvolgibili elettrici e Porta Blindata.
Classe energetica F 100,02 kWh/m²a

Video

Caratteristiche

Stato: Ristrutturato
Piano: 3
Totale piani: 4
Cucina: Abitabile
Bagni: 2
Giardino: Nessuno
Camere da letto: 2
Riscaldamento: Centralizzato
Climatizzazione: Si
Arredamento: Vuoto
Ascensore: Si
Balcone/Terrazzo: No
Box/Posto Auto: No
Cantina: No
Classe energetica: Classe Energetica F
IPE: 100,02 kWh/m²a

Contatti

Inserzionista Alessandro
Aggiornato il 16 agosto 2025

No contatti pubblicitari, grazie.

Invia un messaggio all'inserzionista

Casa Da Privato
La tua pubblicitĂ  qui, contattaci subito!

© 2005-2025 LaboWeb S.n.c. - P. Iva 10185480968
L'utilizzo del sito è subordinato all'accettazione delle Condizioni Generali, Informativa Privacy e Cookie Privacy - Impostazioni Privacy