ClickCase.it

Trilocale ristrutturato in zona centrale

Appartamento in Vendita da Privato - Via San Bernardo 10, Bordighera

87 m² | 3 locali | 1 bagno | € 395.000 | Segnala abuso

Descrizione

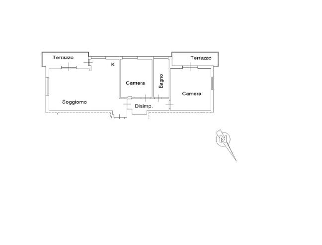
Vendita da privato. In posizione comoda, a pochi minuti dalla passeggiata mare e da tutti i servizi, PRIVATO vende un appartamento soleggiato di 85 mq al secondo piano con ascensore, inserito in un contesto tranquillo e verde. Palazzina di soli 3 piani, con accesso riservato ai soli condomini tramite un cancello esclusivo per residenti e con piccolo spazio verde curato.
Grazie alla tripla esposizione a Sud-Ovest-Est e piano alto, l’immobile risulta molto luminoso durante la giornata. L’appartamento è composto da ingresso che porta direttamente nell'amplio soggiorno con zona pranzo e angolo cottura, corridoio, cameretta, bagno finestrato e una grande camera da letto con armadio ad angolo.
Dal soggiorno e dalla camera si ha accesso a due ampi terrazzi vivibili esposti completamente a Sud con vista aperta nel verde.
L’appartamento è stato competamento ristrutturato recentemente nei minimi dettagli e con particolare attenzione al comfort: porta blindata, impianti elettrici ed idraulici nuovi, finestre con doppio vetro e tapparelle elettriche con telecomando, isolamento acustico, massetto nuovo ecc.
Al piano terreno trovano spazio una comoda cantina asciutta e finestrata, garage con possibilità di parcheggiare la macchina di fronte, posti auto condominiali a rotazione. Senza barriere architettoniche.
Caldaia condominiale nuova cambiata di recente. Lastrico solare comune.
Visto l'ottima posizione, comodità e quiete si presta per vivere stabilmente oppure come seconda casa al mare.

ASTENERSI AGENZIE!
Classe energetica E 54,95 kWh/m²a

Caratteristiche

Stato: Ristrutturato
Piano: 2
Totale piani: 3
Cucina: Angolo cottura
Bagni: 1
Giardino: Comune
Camere da letto: 2
Riscaldamento: Centralizzato
Climatizzazione: No
Arredamento: Semi-arredato
Ascensore: Si
Balcone/Terrazzo: Terrazzo
Box/Posto Auto: Singolo
Cantina: Si
Classe energetica: Classe Energetica E
IPE: 54,95 kWh/m²a

Contatti

Inserzionista Antonio
Aggiornato il 03 febbraio 2026

Invia un messaggio all'inserzionista

Casa Da Privato
La tua pubblicità qui, contattaci subito!

© 2005-2026 LaboWeb S.n.c. - P. Iva 10185480968
L'utilizzo del sito è subordinato all'accettazione delle Condizioni Generali, Informativa Privacy e Cookie Privacy - Impostazioni Privacy