ClickCase.it

TRILOCALE+BOX TOT. RISTRUTTURATI Via Cassia 225mila

Appartamento in Vendita da Privato - Zona Tomba Di Nerone, Roma

57 m² | 3 locali | 1 bagno | € 225.000 | Segnala abuso

Descrizione

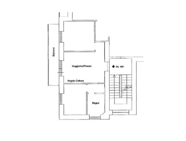
Vendita da privato. Vendo trilocale. SENZA SPESE di AGENZIA! Appartamento totalmente ristrutturato composto da: soggiorno con angolo cottura, camera matrimoniale, cameretta, ampio bagno finestrato, balcone vivibile. Molto luminoso, infissi nuovi con doppi vetri, termoautonomo, certificazione elettrica ed idraulica. Superficie catastale 57mq. Stabile all'ultimo piano di palazzina posta ai primi numeri di via Gradoli, zona Tomba di Nerone, con soli altri 5 nuclei familiari che permette basse spese condominiali. Anche la palazzina, all'ingresso e internamente, ha ricevuto lavori di ristrutturazione. Di pertinenza: box auto singolo di 17mq, serranda elettrica, con allaccio idrico ed elettrico, piastrellato e tinteggiato.
Trattativa solo tra privati! Prezzo: 225mila euro
Classe energetica G

Video

Caratteristiche

Stato: Ristrutturato
Piano: Ultimo
Totale piani: 3
Cucina: Angolo cottura
Bagni: 1
Camere da letto: 2
Riscaldamento: Autonomo
Arredamento: Vuoto
Balcone/Terrazzo: Balcone
Box/Posto Auto: Singolo
Classe energetica: Classe Energetica G

Contatti

Inserzionista Manuel
Aggiornato il 08 settembre 2025

No contatti pubblicitari, grazie.

Invia un messaggio all'inserzionista

Casa Da Privato
La tua pubblicitĂ  qui, contattaci subito!

© 2005-2026 LaboWeb S.n.c. - P. Iva 10185480968
L'utilizzo del sito è subordinato all'accettazione delle Condizioni Generali, Informativa Privacy e Cookie Privacy - Impostazioni Privacy