ClickCase.it

TRILOCALE A CASBENO IN ZONA RESIDENZIALE

Appartamento in Vendita da Privato - Via Martin Luther King 24, Varese

115 m² | 3 locali | € 168.000 | Segnala abuso

Descrizione

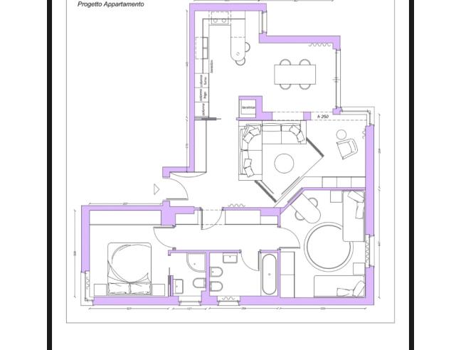
Vendita da privato. In zona Giardini Estensi e piscina Comunale, proponiamo trilocale con ottima esposizione composto da cucina abitabile, sala pranzo, salone, due camere e due bagni. Davanti alla veranda uno splendido giardino condominiale circonda l’appartamento! Completano La proprietà cantina e box. Il condomino è composto di sole 8 unità abitative. Sono già stati installati i contabilizzatori sui termosifoni e abbiamo appena ristrutturato tutto l’ingresso pedonale
La zona e molto tranquilla, ma a 5 Minuti dal centro di Varese e vicino a scuole, supermercati e all’ingresso dell’autostrada per Milano.
La planimetria allegata è un progetto fatto per “ eliminare” delle pareti ora presenti per dare un effetto open space ( quindi non è esattamente così adesso)ma può darvi modo di capire le dimensioni dell’appartamento.
Contattatemi per ulteriori informazioni cell No agenzie

Contatti

Inserzionista Francesca
Aggiornato il 12 gennaio 2026

Invia un messaggio all'inserzionista

Casa Da Privato
La tua pubblicità qui, contattaci subito!

© 2005-2026 LaboWeb S.n.c. - P. Iva 10185480968
L'utilizzo del sito è subordinato all'accettazione delle Condizioni Generali, Informativa Privacy e Cookie Privacy - Impostazioni Privacy