ClickCase.it

TRAIN STATION HOUSE

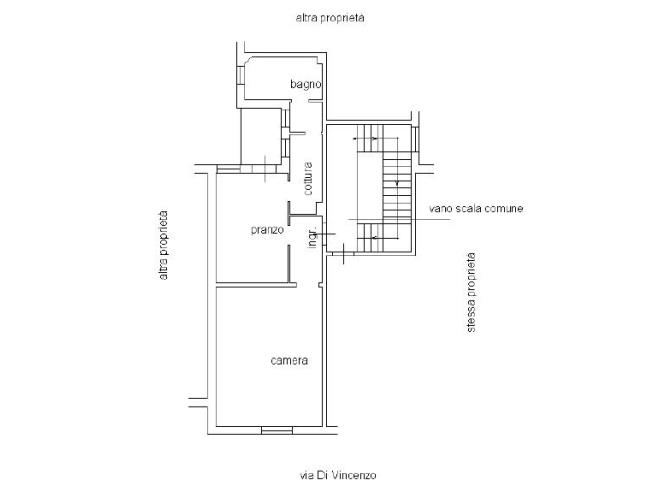
Attività Bed & Breakfast in Vendita da Privato - VIA ANTONIO DI VINCENZO 4, Bologna

50 m² | 2 locali | 1 bagno | € 260.000 | Segnala abuso

Descrizione

No intermediari. Casa vacanze avviato e arredato a 50 mt dalla stazione alta velocità di Bologna, secondo piano, due camere, cucina, bagno, terrazzo, cantina, volendo garage

Caratteristiche

Stato: Ristrutturato
Anno costruzione: 1934
Piano: 2
Totale piani: 4
Superficie esterna: 50 m²
Cucina: Cucinotto
Bagni: 1
Riscaldamento: Autonomo
Climatizzazione: Si
Arredamento: Arredato
Ascensore: No
Balcone/Terrazzo: Balcone
Box/Posto Auto: Singolo
Cantina: Si
Cablato: Si

Contatti

Inserzionista Andrea
Annuncio del 23 marzo 2026

No contatti pubblicitari, grazie.

Invia un messaggio all'inserzionista

Casa Da Privato
La tua pubblicità qui, contattaci subito!

© 2005-2026 LaboWeb S.n.c. - P. Iva 10185480968
L'utilizzo del sito è subordinato all'accettazione delle Condizioni Generali, Informativa Privacy e Cookie Privacy - Impostazioni Privacy