Toscana Scansano appartamento indipendente con giardino

Scansano, Polveraia - Vendita da Privato

  • Appartamento in Vendita da Privato - Via Interna 48, Scansano

    110 m² | 5 locali | 1 bagno | € 149.000

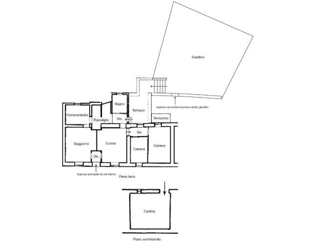
    No provvigioni. Appartamento piano terreno, uniproprietario, di circa 110 mq, in fabbricato bifamiliare a due piani, costituito da cucina, soggiorno, tre camere da letto, bagno e ripostiglio.
    Riscaldamento autonomo centralizzato alimentato da caldaia a gas con possibilità di allaccio alla rete pubblica di distribuzione di gpl. E' presente anche stufa a legna (utilizzata di norma come unica fonte di calore) sufficiente a riscaldare l'intero appartamento, con consumo medio annuo pari a circa 60 q di legna (circa 650 euro/anno di costo).
    Al piano seminterrato, cantina di circa 25 mq a cui si accede dalla pubblica via sul retro del fabbricato.
    E' presente un terrazzo di circa 15 mq adiacente al giardino, ampio circa 150 mq (con pianta di olivo secolare, qual. olivastra seggianese) a cui si accede sia dall'appartamento che direttamente dalla pubblica via (ingresso secondario)
    Al piano del giardino è presente un ulteriore piccolo ripostiglio utile per il rimessaggio degli attrezzi necessari alla manutenzione ordinaria del verde.
    Tetto del fabbricato e facciate esterne rifatte di recente ed in ottime condizioni, pavimenti appartamento nuovi.
    Impianti idraulico ed elettrico a norma e rifatti nel 2006.
    Note
    Nel ripostiglio sono predisposti scarichi e tubature acqua necessari a soddisfare la eventuale necessità di un ulteriore bagno.
    La casa è servita oltre che dal normale acquedotto per l'acqua potabile, anche da un acquedotto privato consortile (la quota consortile viene ceduta insieme all'immobile) che serve l'intera frazione,
    utilizzabile per le necessità legate all'irrigazione del giardino e della pertinenza dell'edificio.
    Parte del mobilio e degli arredi presenti possono essere ceduti insieme all'appartamento con trattativa separata.
    La casa è a circa 10 min di macchina da Scansano, 25 min da grosseto, 50 da Siena, 1 ora e mezza da Firenze e 2 ore da Roma e Pisa.
    Il mare dista circa 40 min, le terme di Saturnia circa 45 min, il monte Amiata circa 50 min.

    L'appartamento è libero e subito abitabile.
    Immobile non soggetto all'obbligo di certificazione energetica


Caratteristiche
Stato: Ristrutturato
Anno costruzione: 1952
Piano: Piano terra
Totale piani: 1
Cucina: Abitabile
Bagni: 1
Giardino: Privato
Camere da letto: 3
Riscaldamento: Autonomo
Climatizzazione: No
Arredamento: Vuoto
Balcone/Terrazzo: Terrazzo
Box/Posto Auto: No
Cantina: Si
Classe energetica: Immobile non soggetto all'obbligo di certificazione energetica

Contatti

No contatti pubblicitari, grazie.

Invia un messaggio all'inserzionista

Inserzionista luca
Aggiornato il 17 dicembre 2025

Segnala abuso