ClickCase.it

TERRENO FABBRICABILE E PROGETTO DI UNA VILLA APPROVATO DAL C

Casa indipendente in Vendita da Privato - Via Liverone 50, Borgo Valsugana

240 m² | più di 5 locali | 2 bagni | € 450.000 | Segnala abuso

Descrizione

Vendita da privato. Il lotto si trova nella zona sud ovest di Borgo Valsugana. Il centro del paese è a due passi dove praticità e vicinanza ai servizi non precludono il privilegio dell’indipendenza abitativa.
Il lotto è pianeggiante e di forma rettangolare, circondato su tre lati da muretti di confine. Si accede tramite una stradina consortale privata.
Sul lotto è stato presentato ed approvato un progetto di una villa unifamiliare.

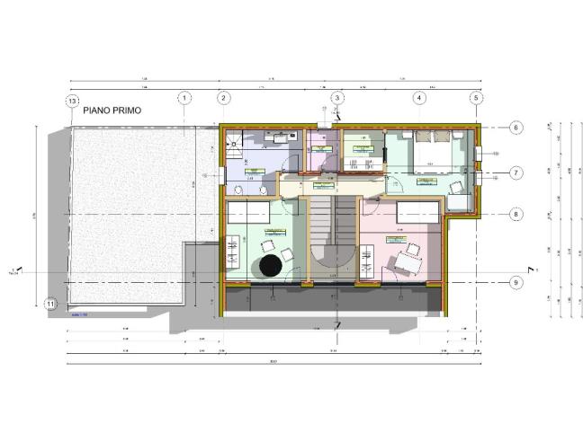
Questa splendida villa è stata progettata per ottimizzare comfort e funzionalità.La residenza, disposta su due livelli, offre ambienti spaziosi e luminosi. Al piano terra, un ampio open-space accoglie la zona giorno con cucina pranzo e soggiorno. Vi sono poi locali accessori antibagno, wc / doccia finestrato e lavanderia/stireria.

Al centro del soggiorno una bellissima scala a vista che porta al piano superiore della zona notte.

La grande vetrata a sud crea una perfetta continuità tra interno ed il giardino esterno, ideale per momenti di convivialità, dove rilassarsi, ricevere gli amici, prendere il sole, leggere un buon libro, giocare con i figli.

Al piano superiore, la zona notte comprende tre ampie camere da letto, tutte progettate per garantire la massima privacy e comfort, con grandi vetrate che regalano una splendida vista panoramica sul paesaggio circostante. A supporto delle camere c’è un grande bagno per garantire comfort e funzionalità per tutta la famiglia.

Completa la dotazione un garage spazioso, capace di ospitare comodamente due autovetture, con ulteriore spazio cantina per biciclette, scooter o attrezzature per il tempo libero. Vi è inoltre un locale tecnico per la centrale termica.

L’edificio è progettato per essere nella più alta classe energetica A4. Si è previsto un sistema di riscaldamento a pavimento servito da una pompa di calore aria/acqua alimentata da un impianto fotovoltaico a tetto di copertura. Essa rappresenta una casa di ultima generazione edilizia, funzionale, antisismica, energetica, ecosostenibile.

E’sicura e con bassi costi di gestione, fortemente isolata con esclusione dei ponti termici ed infissi a triplo vetro camera.

Il progetto è stato approvato dal Comune di Borgo Valsugana.
Per ogni informazione o chiarimento non esitate a contattarci.
No Agenzie-Le immagini allegate sono indicative dell’edificio di progetto.
Classe energetica A4

Caratteristiche

Stato: Nuovo/In costruzione
Anno costruzione: 2025
Totale piani: 2
Cucina: Abitabile
Bagni: 2
Giardino: Privato
Camere da letto: 3
Riscaldamento: Autonomo
Climatizzazione: No
Arredamento: Vuoto
Ascensore: No
Balcone/Terrazzo: Balcone
Box/Posto Auto: Doppio
Cantina: Si
Classe energetica: Classe Energetica A4

Contatti

Inserzionista Aless
Aggiornato il 15 agosto 2025

No contatti pubblicitari, grazie.

Invia un messaggio all'inserzionista

Casa Da Privato
La tua pubblicità qui, contattaci subito!

© 2005-2025 LaboWeb S.n.c. - P. Iva 10185480968
L'utilizzo del sito è subordinato all'accettazione delle Condizioni Generali, Informativa Privacy e Cookie Privacy - Impostazioni Privacy