ClickCase.it

terreno con progetto approvato

Terreno Edificabile Residenziale in Vendita da Privato - Via Palombaro 72, San Venanzo

720 m² | € 55.000 | Segnala abuso

Descrizione

No provvigioni. Terreno edificabile di mq 720 sito in San Venanzo (TR) alla via Palombaro, con Permesso a Costruire n° 26/07 rilasciato dal Comune di San Venanzo il 21/12/2007, con possibilità di richiesta rinnovo e Oneri Concessori pagati per la parte assentita costituita da due villette unifamiliari adiacenti. Le unità immobiliari assentite dal P. di C. anzidetto sono progettate ognuna in modo indipendente l’una dall’altra da due livelli fuori terra con sovrastante copertura a falda inclinata con pacchetto multistrato di materiale isolante ricoperto da tegole alla romana e da un piano seminterrato adibito a deposito - garage avente accesso carrabile dalla strada comunale.


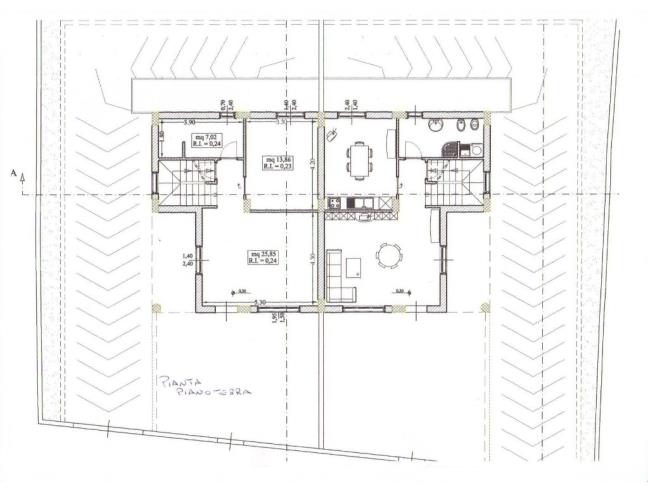
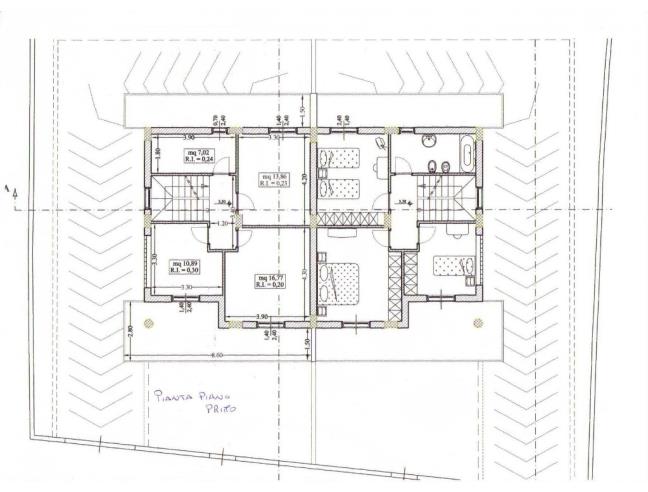
Descrizione dei singoli piani
PIANO SEMINTERRATO adibito parte a garage e parte a deposito al quale si accede sia dalla rampa posta su via Palombaro e dalla scala interna;
PIANO TERRA Con accesso dal cortile indipendente, ampio soggiorno , cucina abitabile con balcone , bagno con doccia e angolo lavanderia,
PIANO PRIMO con una camera matrimoniale e due camerette, bagno con vasca, piccolo disimpegno e due balconi.

Contatti

Inserzionista gennaro
Aggiornato il 27 novembre 2025

No contatti pubblicitari, grazie.

Invia un messaggio all'inserzionista

Casa Da Privato
La tua pubblicità qui, contattaci subito!

© 2005-2025 LaboWeb S.n.c. - P. Iva 10185480968
L'utilizzo del sito è subordinato all'accettazione delle Condizioni Generali, Informativa Privacy e Cookie Privacy - Impostazioni Privacy