ClickCase.it

Stazione Centrale Milano proprietà indivisa

Appartamento in Vendita da Privato - Zona Stazione Centrale, Milano

141 m² | più di 5 locali | € 818.000 | Segnala abuso

Descrizione

No agenzia. Stazione Centrale MI appartamento in Via G.B. Sammartini 15
Da privato a privato, no agenzie, no intermediari.
Privato vende propria quota di proprietà indivisa pari a 84,492%, la restante quota del 15,508% è di altro proprietario comunque intenzionato a vendere.
Prezzo quota 84,492% pari a € 818.000,00, ovvero € 5,797.24 al Mq. da vendersi con accordi privati.
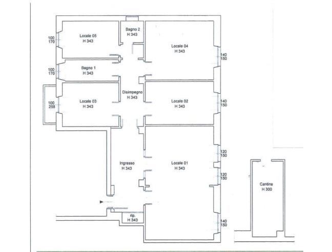
Unità immobiliare con doppia esposizione sita in Milano Via Giovanni Battista Sammartini n. 15, Stazione centrale, in un fabbricato storico di due scale interne in marmo con ascensore e chiave privata per sbarco al piano. L' appartamento è al sesto ed ultimo piano, nel centro nevralgico e logistico della città, a pochissimi metri: dai Bus shuttle per i tre aeroporti lombardi, da due linee metropolitane (verde,gialla) fermata: "Stazione Centrale", dalla stazione ferroviaria, oltre ad altri mezzi di superficie, vicinissime la Circolare destra e sinistra, ed ai servizi della zona. È distante 2.5 km dal centro di Milano.
L’ appartamento consiste di 7 vani: ampio salone, tre camere da letto, cucina abitabile, ripostiglio, ingresso, disimpegno, due bagni con doccia e finestra acqua calda con Boiler elettrico, un balcone, cantina. Ristrutturato, poco abitato, pavimenti con parquet lamati ed originali, in una stanza parquet nuovo, bagno padronale nuovo, impianto elettrico a norma.
Classe energetica D 130,00 kWh/m²a

Caratteristiche

Classe energetica: Classe Energetica D
IPE: 130,00 kWh/m²a

Contatti

Inserzionista Luca
Annuncio del 17 settembre 2025

No contatti pubblicitari, grazie.

Invia un messaggio all'inserzionista

Casa Da Privato
La tua pubblicità qui, contattaci subito!

© 2005-2025 LaboWeb S.n.c. - P. Iva 10185480968
L'utilizzo del sito è subordinato all'accettazione delle Condizioni Generali, Informativa Privacy e Cookie Privacy - Impostazioni Privacy