ClickCase.it

Spazioso e luminoso quadrilocale Castelnuovo Bocca D'Adda

Appartamento in Vendita da Privato - Castelnuovo Bocca d'Adda

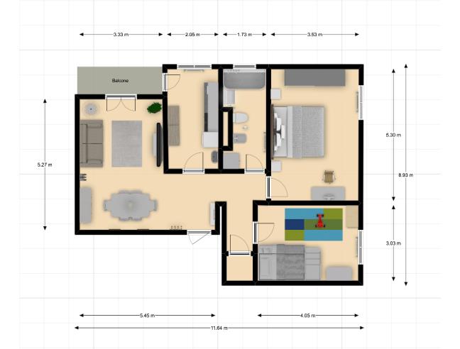
85 m² | 4 locali | 1 bagno | € 25.000 | Segnala abuso

Descrizione

Vendita da privato. Spazioso e luminoso appartamento posto al secondo piano senza ascensore a
due passi dal parco regionale dell'Adda e dal fiume medesimo ed al fiume Po
ricco di percorsi ciclo/pedonali e attività all'aria aperta.
A 20 min d'auto da Piacenza e Cremona.
Bagno molto ampio con possibilità di creare un secondo bagno dividendolo,
ampia camera padronale. Bella vista dalle finestre su campagna circostante.
Da ristrutturare. Porta Blindata. Box compreso nel prezzo. Libero al rogito.
Classe energetica G

Video

Caratteristiche

Stato: Da ristrutturare
Piano: 2
Cucina: Cucinotto
Bagni: 1
Giardino: Comune
Camere da letto: 2
Riscaldamento: Centralizzato
Climatizzazione: No
Arredamento: Vuoto
Ascensore: No
Balcone/Terrazzo: Balcone
Box/Posto Auto: Singolo
Cantina: No
Classe energetica: Classe Energetica G

Contatti

Inserzionista Silvano Banfi
Aggiornato il 25 ottobre 2025

Invia un messaggio all'inserzionista

Casa Da Privato
La tua pubblicitĂ  qui, contattaci subito!

© 2005-2026 LaboWeb S.n.c. - P. Iva 10185480968
L'utilizzo del sito è subordinato all'accettazione delle Condizioni Generali, Informativa Privacy e Cookie Privacy - Impostazioni Privacy