ClickCase.it

RUSTICO CON PROGETTO E TERRENO

Villa in Vendita da Privato - Strada Statale 286 1, Pollina

200 m² | più di 5 locali | € 120.000 | Segnala abuso

Descrizione

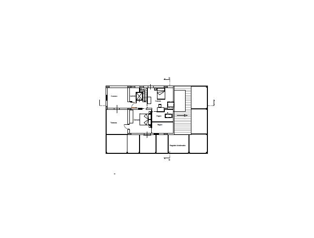
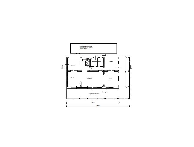
Vendita da privato. Madonie, vicino a Cefalù, abbricato terreno permesso costruzione in Bio edilizia. Ottimo investimento per casa vancanze. A 2km dalla spiaggia del mare, vendesi fabbricato rurale con permesso di costruzione rilasciato e tutti i pareri, anche Soprintendenza e Genio Civile con immediato inizio lavori per demolizione e ricostruzione di una villa su due piani mq 220, con patio e terrazze, con terreno di mq 17000. Possibilità di acquisto con realizzazione a sal. La proprietà è dotata di pozzo. Alla proprietà si accede da una strada privata che si dirama dalla SS286 a 2 km dallo svincolo autostradale in direzione Castelbuono (PA). Ottima posizione ed esposizione anche per scampagnate o escursioni sulle Madonie o nel bellissimo mare della costa turchina. Immersa nei vigneti delle Madonie e degli alberi di manna si gode di tranquillità senza doversi allontanare troppo dalla viabilità regionale o statale. La zone è bene servita anche dal trasposto pubblico regionale.
Immobile non soggetto all'obbligo di certificazione energetica

Caratteristiche

Stato: Da ristrutturare
Piano: Su più livelli
Giardino: Privato
Classe energetica: Immobile non soggetto all'obbligo di certificazione energetica

Contatti

Inserzionista Roberto
Aggiornato il 28 ottobre 2025

No contatti pubblicitari, grazie.

Invia un messaggio all'inserzionista

Casa Da Privato
La tua pubblicità qui, contattaci subito!

© 2005-2025 LaboWeb S.n.c. - P. Iva 10185480968
L'utilizzo del sito è subordinato all'accettazione delle Condizioni Generali, Informativa Privacy e Cookie Privacy - Impostazioni Privacy