ClickCase.it

RUSTICO CON FANTASTICO PANORAMA SULLE COLLINE MACERATESI

Rustico/Casale in Vendita da Privato - Montelupone

190 m² | più di 5 locali | € 109.000 | Segnala abuso

Descrizione

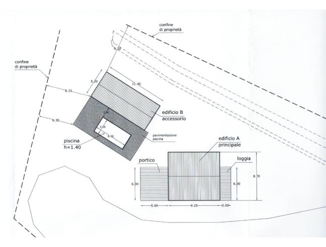
Vendita da privato. Montelupone; vendesi rustico da ristrutturare con vista panoramica mozzafiato, composto da edificio principale su due piani ed edificio accessorio indipendente, in terreno di 2500 mq. Progetto di ristrutturazione esistente e possibilità di estensione della volumetria.
Ottimo per casa di vacanza in assoluta tranquillità, a pochi minuti dal centro di Montelupone.

Video

Caratteristiche

Stato: Da ristrutturare
Totale piani: 2
Giardino: Privato

Contatti

Inserzionista Angelo Albizzati
Aggiornato il 20 novembre 2025

No contatti pubblicitari, grazie.

Invia un messaggio all'inserzionista

La tua pubblicitĂ  qui, contattaci subito!

© 2005-2026 LaboWeb S.n.c. - P. Iva 10185480968
L'utilizzo del sito è subordinato all'accettazione delle Condizioni Generali, Informativa Privacy e Cookie Privacy - Impostazioni Privacy