ClickCase.it

Rustico/Casale

Rustico/Casale in Vendita da Privato - Zona Le Sterpare, Arnara

76 m² | 2 locali | Trattativa Riservata | Segnala abuso

Descrizione

Privato vende. In vendita una porzione di immobile su 2 livelli con ingresso indipendente per un totale di circa 76 mq. catastali con corte esclusiva di circa 1.600 mq. con accesso da strada provinciale.
L'immobile necessita di un'adeguata totale ristrutturazione. Possibile piccolo ampliamento e spostamento.
Possibilità di acquistare ulteriore fabbricato adiacente di circa 100 mq. oltre a ulteriore corte esclusiva.
Per la soluzione di 76 mq. possibilità di pagamento anche mediante permuta di lavori presso altro immobile.
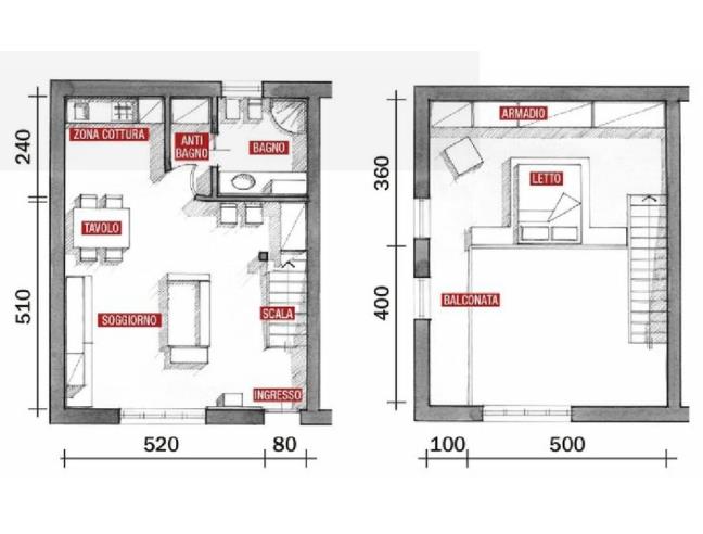
Si allega ipotesi di progetto.
Per ulteriori info e/o sopralluoghi prego scrivere alla seguente mail:
Immobile non soggetto all'obbligo di certificazione energetica

Caratteristiche

Classe energetica: Immobile non soggetto all'obbligo di certificazione energetica

Contatti

Inserzionista Domenico
Aggiornato il 13 gennaio 2026

No contatti pubblicitari, grazie.

Invia un messaggio all'inserzionista

Casa Da Privato
La tua pubblicitĂ  qui, contattaci subito!

© 2005-2026 LaboWeb S.n.c. - P. Iva 10185480968
L'utilizzo del sito è subordinato all'accettazione delle Condizioni Generali, Informativa Privacy e Cookie Privacy - Impostazioni Privacy