ClickCase.it

RIF.VAG130 CASA TERRA CIELO

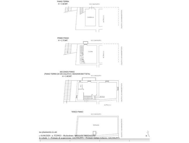
Casa indipendente in Vendita da Privato - Calata Grotte San Michele 12, Gravina in Puglia

200 m² | più di 5 locali | 3 bagni | € 110.000 | Segnala abuso

Descrizione

No agenzia. RIF.VAG130 GRAVINA IN PUGLIA
Italia Via Calata San Giovanni nel borgo medievale della città, proponiamo in vendita INTERO STABILE con doppia esposizione distribuita su tre livelli per un totale mq.200 commerciale più terrazzo panoramico. Lavori strutturali finiti.

Prezzo richiesto euro 110.000,000
Si accettano proposte
Info e Appuntamenti

Il Mattone Italia
Agenzia Immobiliare

Caratteristiche

Stato: Da ristrutturare
Anno costruzione: 1500
Piano: Piano terra
Totale piani: 3
Cucina: Abitabile
Bagni: 3
Giardino: Privato
Camere da letto: più di 5
Riscaldamento: Autonomo
Climatizzazione: Predisposizione
Arredamento: Vuoto
Ascensore: No
Balcone/Terrazzo: Terrazzo
Box/Posto Auto: Singolo
Cantina: Si

Contatti

Inserzionista Leonardo Ferrulli
Aggiornato il 13 ottobre 2025

No contatti pubblicitari, grazie.

Invia un messaggio all'inserzionista

Casa Da Privato
La tua pubblicità qui, contattaci subito!

© 2005-2026 LaboWeb S.n.c. - P. Iva 10185480968
L'utilizzo del sito è subordinato all'accettazione delle Condizioni Generali, Informativa Privacy e Cookie Privacy - Impostazioni Privacy