ClickCase.it

Quadrilocale ristrutturato Manduria

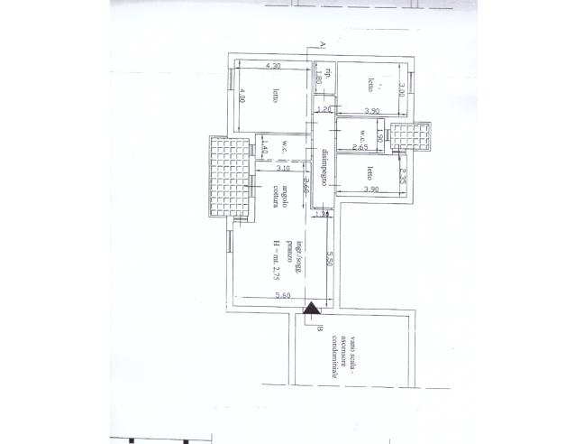
Appartamento in Vendita da Privato - Via Roma 102, Manduria

117 m² | 4 locali | 2 bagni | € 125.000 | Segnala abuso

Descrizione

Vendita da privato. Appartamento ristrutturato con box – 117 mq – Manduria (TA)

Sono Un Privato , quindi niente spese di Agenzia,


In zona servitissima di Manduria, proponiamo in vendita ampio appartamento di 117 mq situato al 4° piano con ascensore, ideale per famiglie o per chi cerca spazi comodi e ben distribuiti.

L’immobile si presenta internamente ristrutturato, con impianti elettrico e idraulico rifatti, ed è pronto da abitare.

Caratteristiche principali
• Superficie interna: 117 mq
• Box auto di 13 mq incluso
• 4° piano con ascensore
• 3 camere da letto
• Open space cucina – soggiorno
• 2 bagni
• uno con doccia
• uno con vasca
• Ripostiglio
• Porta blindata
• 2 condizionatori
• Porte interne scorrevoli a scomparsa
• Riscaldamento centralizzato
• Tapparelle Elettriche
• Videocitofono
• Zanzariere
• Video Sorveglianza Condominiale














Condominio

È già stata pagata la ristrutturazione dello stabile, che sarà realizzata a breve, rappresentando quindi un ulteriore valore aggiunto per l’immobile.

Posizione

L’appartamento si trova in una zona estremamente servita. Nel raggio di circa 100 metri sono presenti:
• supermercati
• posta
• banche
• distributori di carburante
• scuole

Una posizione che permette di avere tutti i servizi essenziali a pochi passi.

Ottima soluzione per chi cerca spazi ampi, comfort e una posizione centrale a Manduria.

Caratteristiche

Stato: Ristrutturato
Piano: 4
Cucina: Abitabile
Bagni: 2
Giardino: Nessuno
Camere da letto: 3
Riscaldamento: Centralizzato
Climatizzazione: Si
Ascensore: Si
Balcone/Terrazzo: Balcone
Box/Posto Auto: Singolo

Contatti

Inserzionista Valentino
Aggiornato il 25 marzo 2026

No contatti pubblicitari, grazie.

Invia un messaggio all'inserzionista

La tua pubblicità qui, contattaci subito!

© 2005-2026 LaboWeb S.n.c. - P. Iva 10185480968
L'utilizzo del sito è subordinato all'accettazione delle Condizioni Generali, Informativa Privacy e Cookie Privacy - Impostazioni Privacy