ClickCase.it

Quadrilocale con giardino

Appartamento in Vendita da Privato - Zona Gaiofana, Rimini

144 m² | 4 locali | € 310.000 | Segnala abuso

Descrizione

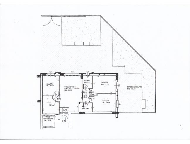
No agenzia. In zona Gaiofana vendesi appartamento di recente costruzione composto da ampio openspace per salotto sala da pranzo e cucina, 3 camere da letto matrimoniali e 2 bagni, uno con vasca e l'altro con doccia. Il giardino di circa 200 metri ha un'area piastrellata ed una zona adibita al verde con cancello predisposto per entrata auto. Altre caratteristiche interessanti sono il doppio ingresso, riscaldamento a pavimento, tapparelle elettriche, inferriate e garage coperto.
Classe energetica C

Caratteristiche

Classe energetica: Classe Energetica C

Contatti

Inserzionista Roberto
Aggiornato il 03 novembre 2025

No contatti pubblicitari, grazie.

Invia un messaggio all'inserzionista

La tua pubblicitĂ  qui, contattaci subito!

© 2005-2025 LaboWeb S.n.c. - P. Iva 10185480968
L'utilizzo del sito è subordinato all'accettazione delle Condizioni Generali, Informativa Privacy e Cookie Privacy - Impostazioni Privacy