ClickCase.it

Privato vende lotti terreno Desenzano del Garda

Altro in Vendita da Privato - Desenzano del Garda

580 m² | 1 locale | Trattativa Riservata | Segnala abuso

Descrizione

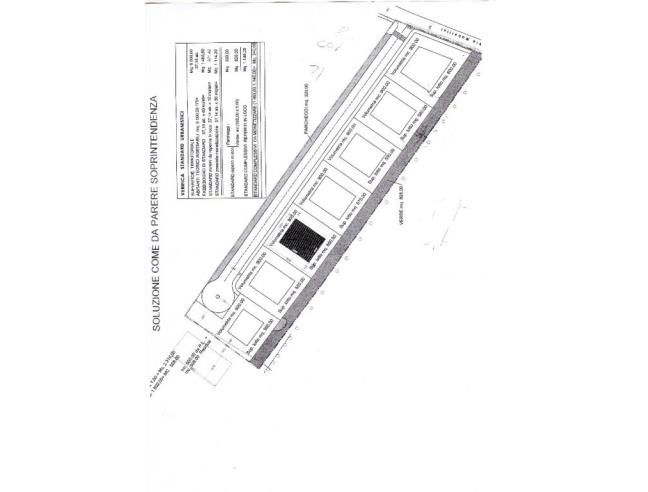
Vendita da privato. Privato vende lotti di terreno edificabile in località Ricoltella di Desenzano del Garda.
Sono dispobinili e lotti; ognuno di mq. 580 con una volumetria disponibile di 900 mc. ciascuno.
L'area è urbanizzata.
I lotti sono confinanti tra loro pertanto si valutano proposte di acquisto per più lotti.
Il terreno è situato in una zona residenziale a poche centinaia di mt. dal lago e 3 km dal casello A4 di Sirmione

Contatti

Inserzionista Elio
Aggiornato il 17 maggio 2025

Invia un messaggio all'inserzionista

Casa Da Privato
La tua pubblicitĂ  qui, contattaci subito!

© 2005-2025 LaboWeb S.n.c. - P. Iva 10185480968
L'utilizzo del sito è subordinato all'accettazione delle Condizioni Generali, Informativa Privacy e Cookie Privacy - Impostazioni Privacy