ClickCase.it

POZZOLATICO 5 VANI

Appartamento in Vendita da Privato - Impruneta

105 m² | 5 locali | € 330.000 | Segnala abuso

Descrizione

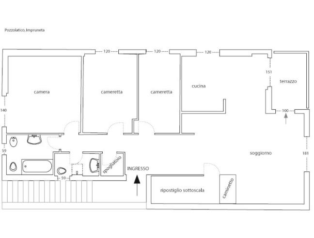
No intermediari. Pozzolatico, Impruneta. Oltre 100 mq. in ottimo stato di conservazione, libero su tre lati, posto al primo ed ultimo di una palazzina di sei unità. 3 camere, ampio soggiorno con caminetto, cucina e zona pranzo. 2 bagni finestrati. Terrazza abitabile.1 ripostiglio e 1 guardaroba. Molto luminoso con 9 finestre doppie e triple tutte con doppi vetri. Soffitta che ricopre tutto l’appartamento. Pavimento in cotto e parquet nelle camere. Completano l’immobile un giardino esterno, un posto auto coperto e una cantina. È situato in strada privata con ampio parcheggio. Termo singolo.
Classe energetica G

Caratteristiche

Classe energetica: Classe Energetica G

Contatti

Inserzionista Stefano Grisieti
Aggiornato il 27 settembre 2025

Invia un messaggio all'inserzionista

Casa Da Privato
La tua pubblicità qui, contattaci subito!

© 2005-2026 LaboWeb S.n.c. - P. Iva 10185480968
L'utilizzo del sito è subordinato all'accettazione delle Condizioni Generali, Informativa Privacy e Cookie Privacy - Impostazioni Privacy