ClickCase.it

PORZIONE DI CASALE CLASSIFICATO "EDIFICIO TESTIMONIALE"

Palazzo/Stabile in Vendita da Privato - Via Donato Bramante 13, Cortemaggiore

170 m² | 4 locali | 3 bagni | € 166.000 | Segnala abuso

Descrizione

Vendita da privato. L'immobile, venduto al rustico, è sito in zona silenziosa ed è stato ricavato dalla ristrutturazione di un edificio del 1800. La struttura, verificata sismicamente, consta di due piani collegati da una scala interna piu' un sottotetto abitabile. Esternamente un'ampia area cortilizia fa di quasto immobile una stupenda abitazione nel contempo isolata e sita a pochi minuti dal centro cittadino.
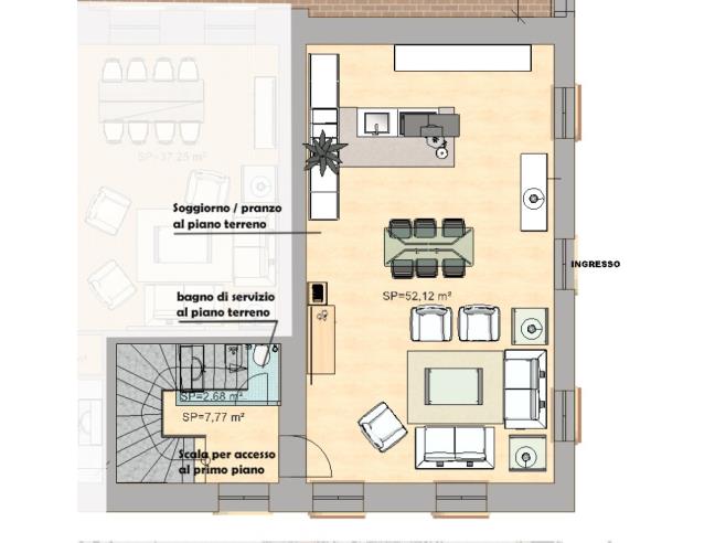
I render propongono una delle tante soluzioni abitative che possono essere ricavate dalla base rustica.

Caratteristiche

Stato: Ristrutturato
Anno costruzione: 2015
Totale piani: 3
Cucina: Angolo cottura
Bagni: 3
Giardino: Privato
Camere da letto: 2
Box/Posto Auto: Posto auto scoperto

Contatti

Inserzionista Angelo
Aggiornato il 11 dicembre 2025

No contatti pubblicitari, grazie.

Invia un messaggio all'inserzionista

Casa Da Privato
La tua pubblicità qui, contattaci subito!

© 2005-2026 LaboWeb S.n.c. - P. Iva 10185480968
L'utilizzo del sito è subordinato all'accettazione delle Condizioni Generali, Informativa Privacy e Cookie Privacy - Impostazioni Privacy