ClickCase.it

Porzione di casa uso abitazione

Porzione di casa in Vendita da Privato - Sedico

78 m² | 3 locali | 1 bagno | € 35.000 | Segnala abuso

Descrizione

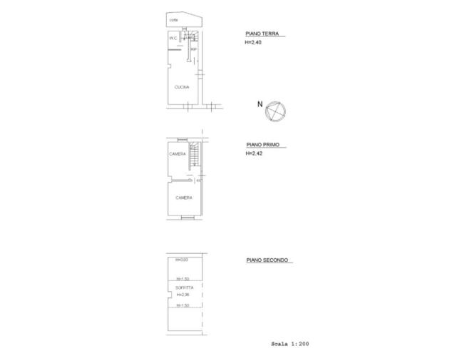
No provvigioni. Vendesi in località Noal porzione di fabbricato abitabile da rinnovare. Composto da cucina, piccolo soggiorno, bagno, ripostiglio, due camere e soffitta. Situato in una tranquilla zona rurale. Diritto alla corte comune.
Classe energetica G 180,00 kWh/m²a

Caratteristiche

Stato: Abitabile
Piano: Su più livelli
Totale piani: 2
Cucina: Angolo cottura
Bagni: 1
Giardino: Nessuno
Camere da letto: 2
Riscaldamento: Assente
Climatizzazione: No
Arredamento: Semi-arredato
Ascensore: No
Balcone/Terrazzo: No
Box/Posto Auto: No
Cantina: No
Classe energetica: Classe Energetica G
IPE: 180,00 kWh/m²a

Contatti

Inserzionista Franco Andrea
Aggiornato il 06 novembre 2025

No contatti pubblicitari, grazie.

Invia un messaggio all'inserzionista

Casa Da Privato
La tua pubblicità qui, contattaci subito!

© 2005-2025 LaboWeb S.n.c. - P. Iva 10185480968
L'utilizzo del sito è subordinato all'accettazione delle Condizioni Generali, Informativa Privacy e Cookie Privacy - Impostazioni Privacy