ClickCase.it

Porzione angolare di Casale con Giardino

Villetta a schiera in Vendita da Privato - Zona Stazione Di Maccarese-Fregene, Fiumicino

78 m² | 3 locali | 2 bagni | € 225.000 | Segnala abuso

Descrizione

No provvigioni. Descrizione
Località: Maccarese (RM) - Via di Campo Salino
Tipologia: Porzione di casale indipendente
Anno di costruzione: 1930
Superficie commerciale: 78 m²
Livelli: 2
- restaurato 12 anni fa, impianti nuovi e certificati -

Contesto: zona silenziosa, immersa nel verde, esposizione solare per l'intera giornata, vista aperta sul verde, confine diretto con riserva naturale

1,5 KM dal mare

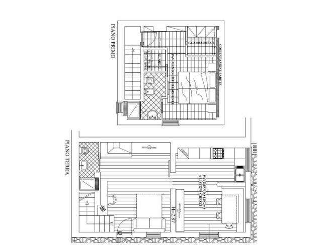
Distribuzione interna

Piano Terra
o Soggiorno con camino
o Cucina abitabile arredata (frigorifero e armadi inclusi)
Piano Primo
o Camera matrimoniale con cabina armadio
o Bagno finestrato

Spazi esterni

o Corte privata
o Giardino in parte pavimentato e in parte a prato
o Area barbecue
o 2 Casette in legno
o Posti auto interni (fino a più veicoli)
o Affaccio su aree verdi naturali e riserva protetta

Caratteristiche e dotazioni

o Camino nel soggiorno
o Riscaldamento: stufa a legna + impianto a metano con termosifoni
o Climatizzazione caldo/freddo
o Infissi in doppio vetro
o Persiane blindate
o Sistema d'allarme remoto
o Domotica per gestione comfort e sicurezza
o Esposizione solare ottimale per tutto il giorno
o Contesto estremamente silenzioso
o Vista sul verde e sulla riserva naturale

Aspetti economici

o Prezzo richiesto: ? 225.000
o Prezzo trattabile
o Immobile mutuabile
o Nessuna spesa condominiale
o Nessuna spesa consortile

Posizione e servizi

o Vicinanza a: pista ciclabile, Castello di Maccarese, piazza del borgo
o Servizi raggiungibili a piedi: scuola, supermercato, banca
o Stazione ferroviaria nelle immediate vicinanze
o Area tranquilla, verde, protetta e ben collegata, vicino al mare e centro commerciale

Contatti
Per informazioni e visite: contattami via chat per verificare disponibilità e appuntamenti.

NO AGENZIE.

Non voglio essere contattato da agenzie o telemarketing
Classe energetica G

Caratteristiche

Stato: Ristrutturato
Anno costruzione: 1936
Piano: Su più livelli
Totale piani: 2
Cucina: Abitabile
Bagni: 2
Giardino: Privato
Camere da letto: 1
Riscaldamento: Autonomo
Climatizzazione: Si
Arredamento: Semi-arredato
Balcone/Terrazzo: Terrazzo
Box/Posto Auto: Posto auto scoperto
Cantina: Si
Classe energetica: Classe Energetica G

Contatti

Inserzionista Alex
Annuncio del 15 aprile 2026

No contatti pubblicitari, grazie.

Invia un messaggio all'inserzionista

La tua pubblicità qui, contattaci subito!

© 2005-2026 LaboWeb S.n.c. - P. Iva 10185480968
L'utilizzo del sito è subordinato all'accettazione delle Condizioni Generali, Informativa Privacy e Cookie Privacy - Impostazioni Privacy