ClickCase.it

piano 5° alto vista Aventino

Appartamento in Vendita da Privato - Zona Centro Storico, Roma

63 m² | 3 locali | 1 bagno | € 300.000 | Segnala abuso

Descrizione

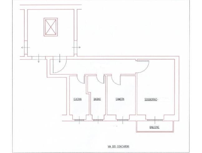
No intermediari. Luminoso appartamento in palazzo signorile ristrutturato. 5' piano con ascensore e portiere. Spese condominio 50 Euro circa al mese. Composto da ingresso, lungo corridoio, salone grande, camera da letto, cucina vivibile con grande finestra, ripostiglio, bagno con vasca e grande finestra. Ampio balcone, 2 soppalchi, porta blindata. Possibilità di ricavare una salotto con angolo cottura. Cancello, portone, cassette postali nuovissimi. Ideale per coppia, investimento o studio professionista.

Particolarità immobile
Vista sulle Mura Aureliane, zona tranquilla, parcheggio, pista ciclabile, ben collegato con tutti i servizi ed importanti uffici/enti. Ben servito da supermercati e ogni attività commerciale; ad. Metro Piramide, stazione FS e Roma Ostia.

Eccezionale collocazione ad un passo dallo storico quartiere di Testaccio e prossimo a Trastevere, con la sua storia (Porta San Paolo o Porta Ostiensis, perchè da lì inizia, la via Ostiense, la strada che collega Roma ad Ostia e quindi al suo antico porto; la Piramide di Caio Cestio; il Monte dei Cocci; il Campo Testaccio; la Città dell’Altra Economia al Campo Boario; il Cimitero degli Inglesi, che conserva le tombe di molti personaggi famosi quali Shelley, Keats, il figlio di Goethe, Gramsci..); la sua cultura (sezione del Macro, una sede della Facoltà di Architettura dell'Università di Roma Tre, la Scuola Popolare di Musica di Testaccio, il teatro Vittoria, il teatro dei Conciatori, Eataly ed altri con ottima cucina romanesca tradizionale...). Si può tranquillamente fare a meno dell'automobile. Nel raggio di pochi metri ci sono:
- metro B Piramide,
- autobus verso il Centro Storico e periferia (3B, 23, 30, 83, 715, 716, 75, 271, 280..),
- tram 3
- trenino Roma-Ostia,
- stazione FS Ostiense (rete urbana ed extra-urbana)
e tutti i servizi:
- negozi di ogni genere,
- supermercati,
- farmacie,
- banche,
- mercato ortofrutticolo Testaccio,
- ufficio postale centrale di Roma Ostiense,
- Uffici del Comune e della Prefettura
- FAO,
- ACEA..
"Da oltre un decennio l’area del Testaccio-Ostiense è uno straordinario laboratorio di trasformazioni urbane, un’area strategica per lo sviluppo e la modernizzazione di Roma nel XXI secolo ed anche un terreno di riflessione culturale e progettuale particolarmente impegnativo. Si tratta, infatti, di un’area di grande pregio per la sua posizione strategica – collocata a cavallo delle Mura Aureliane, a ridosso del centro storico (distante dal Campidoglio tra 1,5 e 4,5 Km), e lungo un asse direzionale verso l’EUR e verso il mare che è ancora oggi cruciale per lo sviluppo della città contemporanea –, per le peculiarità ambientali – accarezzata in tutta la sua proiezione dal Tevere e lambita dal Parco dell’Appia –, per uno straordinario paesaggio urbano che vede accanto a grandi topos della città antica (il Monte Testaccio, la Piramide), di quella paleocristiana (la Basilica di San Paolo fuori le mura), di quella contemporanea (il Cimitero acattolico e Porta San Paolo) i segni di una Roma produttiva che è stata protagonista nel processo di modernizzazione della città nel primo cinquantennio post-unitario. Siamo cioè di fronte a un territorio che contiene profili storici e paesaggistici di rilevante interesse, tali da creare nell’insieme un importante patrimonio culturale per la città." (Carlo M. Travaglini, TRA TESTACCIO E L’OSTIENSE I SEGNI DI ROMA PRODUTTIVA. UN PAESAGGIO URBANO E UN PATRIMONIO CULTURALE PER LA CITTÀ.pdf)
Classe energetica G

Video

Caratteristiche

Stato: Abitabile
Anno costruzione: 1930
Piano: 5
Totale piani: 8
Cucina: Abitabile
Bagni: 1
Giardino: Nessuno
Camere da letto: 2
Riscaldamento: Centralizzato
Climatizzazione: Predisposizione
Arredamento: Semi-arredato
Ascensore: Si
Balcone/Terrazzo: Terrazzo
Box/Posto Auto: Posto auto scoperto
Cantina: No
Classe energetica: Classe Energetica G

Contatti

Inserzionista Conte
Aggiornato il 29 novembre 2025

Invia un messaggio all'inserzionista

Casa Da Privato
La tua pubblicità qui, contattaci subito!

© 2005-2026 LaboWeb S.n.c. - P. Iva 10185480968
L'utilizzo del sito è subordinato all'accettazione delle Condizioni Generali, Informativa Privacy e Cookie Privacy - Impostazioni Privacy