ClickCase.it

Offro

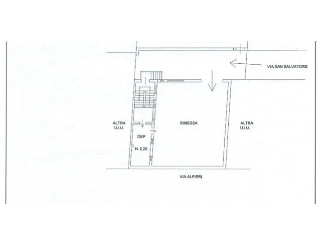
Magazzino in Affitto da Privato - Ginosa

110 m² | 1 locale | Trattativa Riservata | Segnala abuso

Descrizione

Privato affitta. Offro in Affitto Magazzino Piano Terra , di mq. 110 con servizi igenici funzionanti.
A pochi minuti da Piazza Orologio e Piazza Nusco. Ingresso separato dal palazzo. Ottimo come Deposito Materiale, Laboratorio,Disponibile Subito

Caratteristiche

Tipo locazione: 3+2 concordato
Spese: € 10 mensili a parte
Stato: Ristrutturato
Anno costruzione: 1990
Piano: Seminterrato
Totale piani: 3

Contatti

Inserzionista Francesco
Annuncio del 27 marzo 2026

Invia un messaggio all'inserzionista

Casa Da Privato
La tua pubblicità qui, contattaci subito!

© 2005-2026 LaboWeb S.n.c. - P. Iva 10185480968
L'utilizzo del sito è subordinato all'accettazione delle Condizioni Generali, Informativa Privacy e Cookie Privacy - Impostazioni Privacy