ClickCase.it

Nuova bifamiliare

Porzione di casa in Vendita da Privato - Zona Olmo Di Tribano, Tribano

200 m² | più di 5 locali | € 180.000 | Segnala abuso

Descrizione

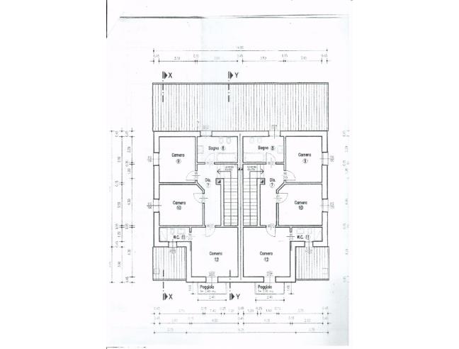
Vendita da privato. NUOVA BIFAMILIARE, centro Olmo di Tribano, per un totale di oltre 200 mq a scelta: zona living, 56 mq, costituita da ingresso, soggiorno, cucina; possibilità di cucina separata; disimpegno, lavanderia, bagno e garage di 16 mq con accesso diretto all'abitazione; scala di accesso alla zona notte, disimpegno, camera matrimoniale da 17 mq con bagno e poggiolo, due camere da 13 mq e bagno luminoso. MURATURA DI DIVISIONE DOPPIA, muro portante in THERMO BLOCK SX 10, spessore 40 cm, antisismico. Esterno di proprietà di circa 600 mq. Possibilità di personalizzazione. Vendita al grezzo avanzato. Direttamente da impresa costruttrice italiana. Da 180 mila Euro - prezzo al grezzo avanzato. A.C.E. previsto classe B - 64,2 kWh/mq anno.
Classe energetica B 64,20 kWh/m²a

Caratteristiche

Classe energetica: Classe Energetica B
IPE: 64,20 kWh/m²a

Contatti

Inserzionista Claudio
Aggiornato il 08 febbraio 2026

No contatti pubblicitari, grazie.

Invia un messaggio all'inserzionista

Casa Da Privato
La tua pubblicitĂ  qui, contattaci subito!

© 2005-2026 LaboWeb S.n.c. - P. Iva 10185480968
L'utilizzo del sito è subordinato all'accettazione delle Condizioni Generali, Informativa Privacy e Cookie Privacy - Impostazioni Privacy