ClickCase.it

Nuoro - 2 Locali uso Studio/Ufficio

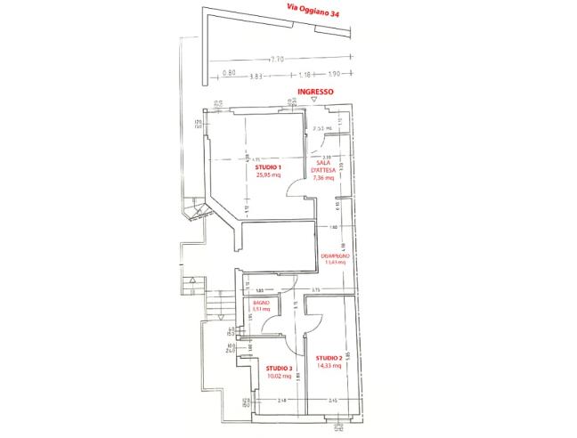
Ufficio in Vendita da Privato - Via Luigi Oggiano 34, Nuoro

24 m² | 2 locali | Trattativa Riservata | Segnala abuso

Descrizione

Privato vende. Nuoro - Via Oggiano 34, fronte Ex agenzia delle entrate, affittasi locali uso ufficio.
Studi 2 di 14 mq
Studi 3 di 10mq (vedi pianta )
I locali sono posti su un unico livello al piano terra, suddiviso in ingresso (2,5mq), sala di attesa (13,43mq) e bagno. Lo studio gode di ottima posizione, ideale per uso studio ufficio o ambulatorio Fronte strada. I locali possono essere affittati anche singolarmente.

Contatti

Inserzionista Paolo
Aggiornato il 13 agosto 2025

No contatti pubblicitari, grazie.

Invia un messaggio all'inserzionista

La tua pubblicità qui, contattaci subito!

© 2005-2026 LaboWeb S.n.c. - P. Iva 10185480968
L'utilizzo del sito è subordinato all'accettazione delle Condizioni Generali, Informativa Privacy e Cookie Privacy - Impostazioni Privacy